MUC - Zentrum

Altstadt-Lehel – Neubauqualität am Promenadeplatz

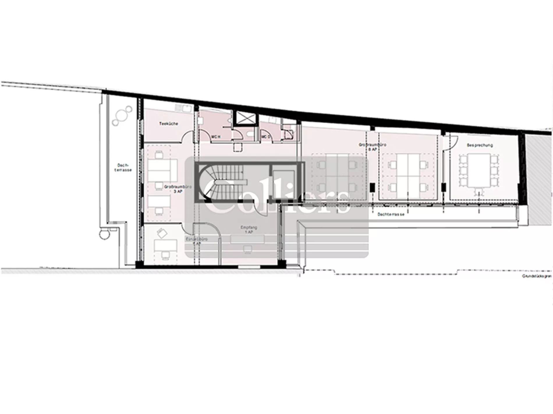
Büro | Zur Miete: 48,00 €/m2 | Objekt-ID: EXT-000886

Simon Wagner

+49 89 624294 46







    Wir verwenden Ihre Angaben zweckgebunden zur Bearbeitung Ihrer Anfrage. Weiter Informationen finden Sie in unsere Datenschutzerklärung.



    Fläche
    2.530 m2
    Teilbar ab
    204 m2
    Mietpreis ab
    48,00 €/m2
    Verfügbar ab
    Kurzfristig / Q1 2026

    Rarität am Promenadeplatz Hochwertigster Ausbau nach Mieterwunsch

    • Fenster: Öffenbare Fenster
    • Sonnenschutz: Sonnen-/Blendschutz auf Anfrage
    • Zugangssystem: Zugangskontrollsystem auf Anfrage
    • Beleuchtung Büro: Beleuchtung nach Vereinbarung
    • Bodenbelag Büro: Bodenbelag mieterseitig
    • Kühlung Büro: Fensterlüftung, Kühldecke
    • Teeküchen: Teeküche(n) auf Anfrage
    • Verkabelung Büro: Verkabelung mieterseitig

    Energieausweis

    • Energieausweis: nicht erforderlich

    Sonstige Angaben

    Colliers International ist ein weltweit agierendes Unternehmen für Immobilien-Dienstleistungen mit mehr als 18.000 Experten, die aus mehr als 403 Büros in 68 Ländern tätig sind. Das Unternehmen bietet eine umfassende Palette von Dienstleistungen für Immobilien-Nutzer, Eigentümer und Investoren einschließlich: Corporate Solutions, Objektbewertung und -beratung, Projektentwicklungsberatung, Investment Services, Immobilien- und Asset-Management, Projektmanagement, Research und Prognosen.

    Ähnliche Objekte in der Nähe