Ganghoferstraße 27a, 80339 München

New Ganghofer – Büros mit Weitblick & exklusiver Terrasse

Büro | Zur Miete: 37,50 €/m2 | Objekt-ID: EXT-002104

Kathrin Bogner

+49 89 624294 85







    Wir verwenden Ihre Angaben zweckgebunden zur Bearbeitung Ihrer Anfrage. Weiter Informationen finden Sie in unsere Datenschutzerklärung.



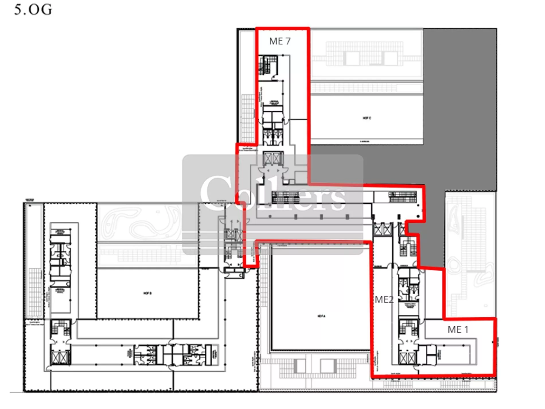
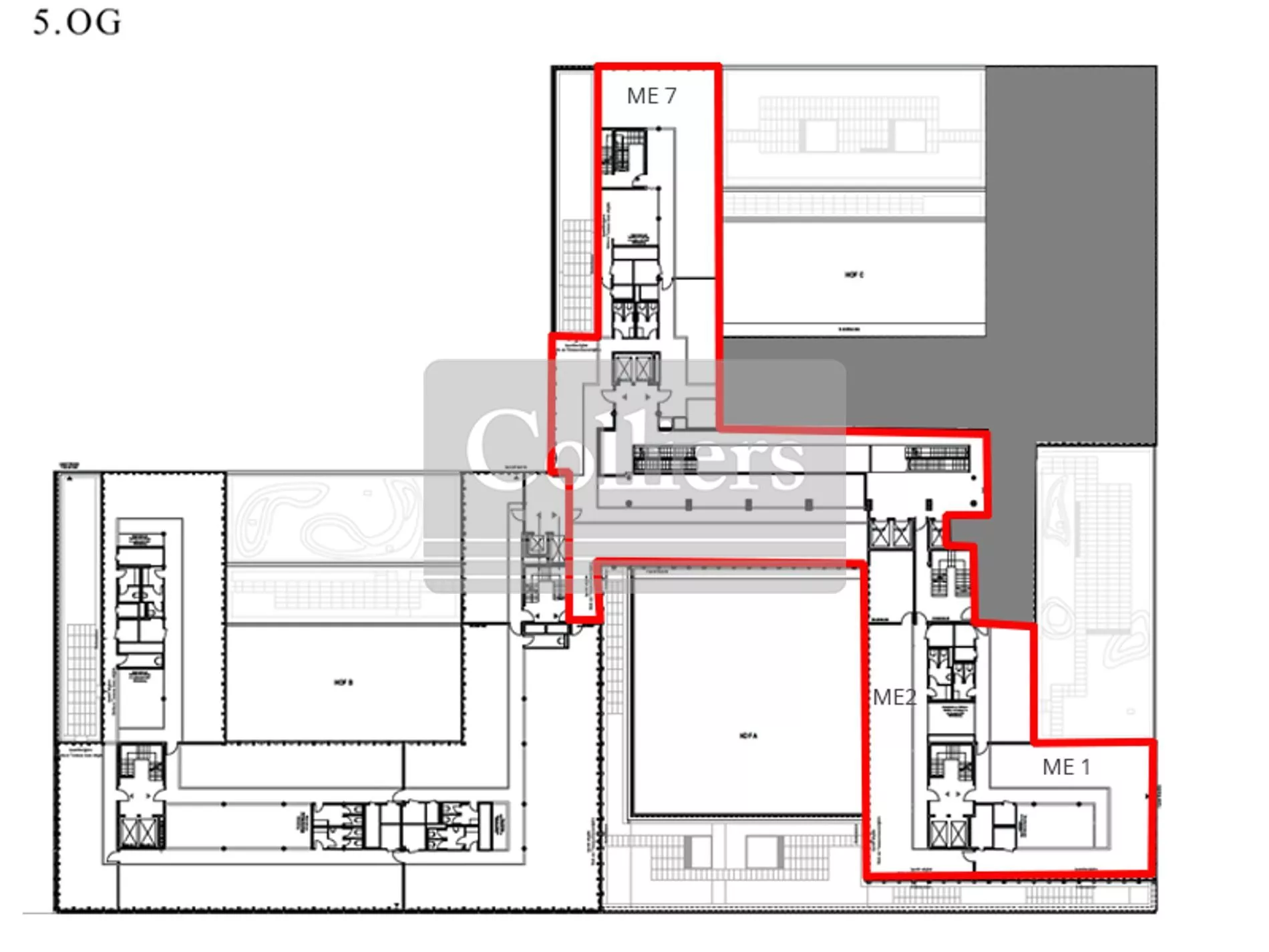
    Fläche
    1.500 m2
    Mietpreis ab
    37,50 €/m2
    Verfügbar ab
    7-8 Monate nach MV-Unterzeichnung
    • Revitalisierung in 2024/2025/2026
    • Repräsentatives, modernes Bürohaus mit markanter Fassade, Auszeichnung 2004 mit dem Deutschen Fassadenpreis
    • Lichtdurchflutete Lobby mit Café und Lounge-Bereichen
    • Hochwertige Ausstattungsmaterialien in allen Bereichen, individueller Mieterausbau mit Glas- und Parkettanteil
    • Gemeinschaftlicher, großzügiger Fahrradraum mit Duschen, Umkleiden und Werkstatt
    • E-Ladestationen für Fahrräder und Pkws
    • Begrünte Dachterrassen und Innenhofflächen stehen den zukünftigen Mietern zur Verfügung
    • Mietpreis: 37,00 - 38,00 €/m²
    • Fenster: Doppelverglasung, Öffenbare Fenster
    • Sonnenschutz: Elektrisch, Sonnenschutz außen
    • Zugangssystem: Kontaktloser Zugang
    • Beleuchtung Büro: Deckenspots, Stehleuchten
    • Bodenbelag Büro: Parkettboden, Teppichboden
    • Kühlung Büro: Be- und Entlüftung, Heiz- und Kühlsegel
    • Teeküchen: Teeküche(n) auf Anfrage
    • Verkabelung Büro: Glasfaser, Doppelboden, Hohlraumboden
    • Lichte Büro Raumhöhe in m von 3,00 bis 3,50
    • Zertifizierung: DGNB Gold, Zertifizierung angestrebt

    Energieausweis

    • Energieausweis: nicht erforderlich

    Baujahr

    2002

    Sonstige Angaben

    Dieses Objekt wird im Leadmakler-Auftrag von Colliers International Deutschland GmbH betreut. Colliers International ist ein weltweit agierendes Unternehmen für Immobilien-Dienstleistungen mit mehr als 18.000 Experten, die aus mehr als 403 Büros in 68 Ländern tätig sind. Das Unternehmen bietet eine umfassende Palette von Dienstleistungen für Immobilien-Nutzer, Eigentümer und Investoren einschließlich: Corporate Solutions, Objektbewertung und -beratung, Projektentwicklungsberatung, Investment Services, Immobilien- und Asset-Management, Projektmanagement, Research und Prognosen.

    Ähnliche Objekte in der Nähe