MUC - Stadt Süd-West

Sehr repräsentatives Bürogebäude

Büro | Zur Miete: 20,50 €/m2 | Objekt-ID: EXT-000995

Jessica Meusel

+49 89 624294 83







    Wir verwenden Ihre Angaben zweckgebunden zur Bearbeitung Ihrer Anfrage. Weiter Informationen finden Sie in unsere Datenschutzerklärung.



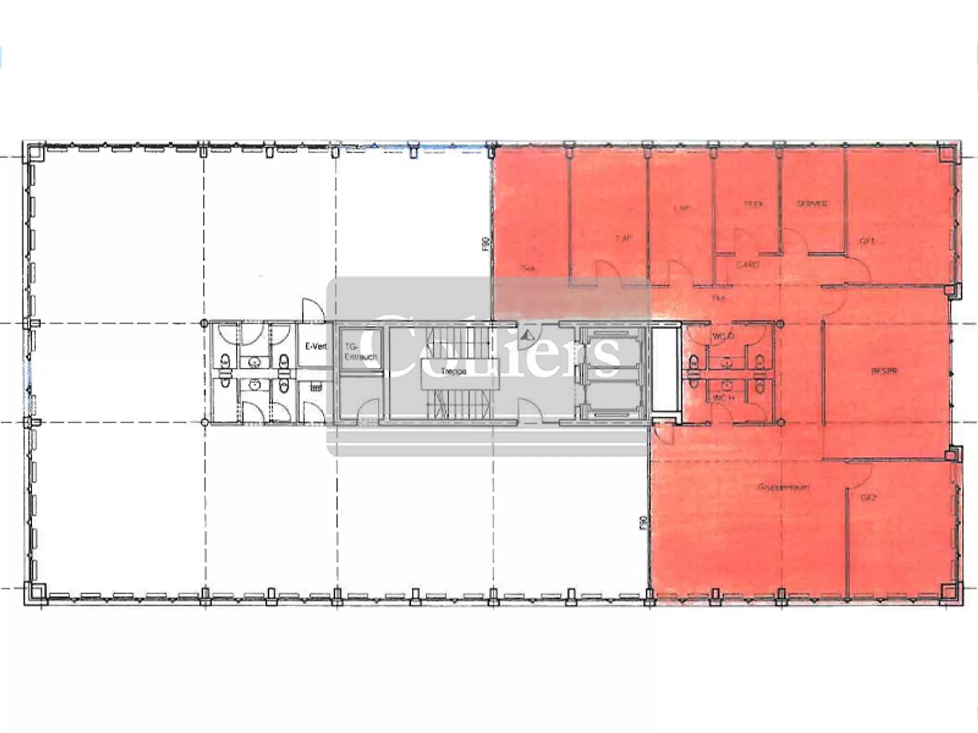
    Fläche
    3.648 m2
    Teilbar ab
    350 m2
    Mietpreis ab
    20,50 €/m2
    Verfügbar ab
    Kurzfristig
    • Baujahr Haus Nr. 42: 2001
    • Baujahr Haus Nr. 44: 2005
    • Sehr repräsentative Bürogebäude
    • Imposanter Eingangsbereich
    • Raumaufteilung nach Mieterwunsch
    • Lichtdurchflutete Büroräume
    • Raumhohe Fenster
    • Fenster: Öffenbare Fenster
    • Heizung: Gas-Heizung
    • Sonnenschutz: Elektrisch, Sonnenschutz außen
    • Zugangssystem: Schließsystem elektronisch
    • Beleuchtung Büro: Pendelleuchten
    • Bodenbelag Büro: Bodenbelag mieterseitig
    • Kühlung Büro: Bauteilkühlung / Betonkernaktivierung, Be- und Entlüftung
    • Teeküchen: Teeküche(n) auf Anfrage
    • Verkabelung Büro: CAT 7, Glasfaser, Doppelboden, Hohlraumboden
    • Büro Achsmaß in m von 1.35 bis 1.70
    • Lichte Büro Raumhöhe in m von 2.50 bis 3.50

    Energieausweis

    • Energieausweis: bei Besichtigung

    Baujahr

    2004

    Sonstige Angaben

    Colliers International ist ein weltweit agierendes Unternehmen für Immobilien-Dienstleistungen mit mehr als 18.000 Experten, die aus mehr als 403 Büros in 68 Ländern tätig sind. Das Unternehmen bietet eine umfassende Palette von Dienstleistungen für Immobilien-Nutzer, Eigentümer und Investoren einschließlich: Corporate Solutions, Objektbewertung und -beratung, Projektentwicklungsberatung, Investment Services, Immobilien- und Asset-Management, Projektmanagement, Research und Prognosen.

    Ähnliche Objekte in der Nähe