Düsseldorf Süd

Moderne Büroflächen mit idealer Anbindung in Düsseldorf Benrath

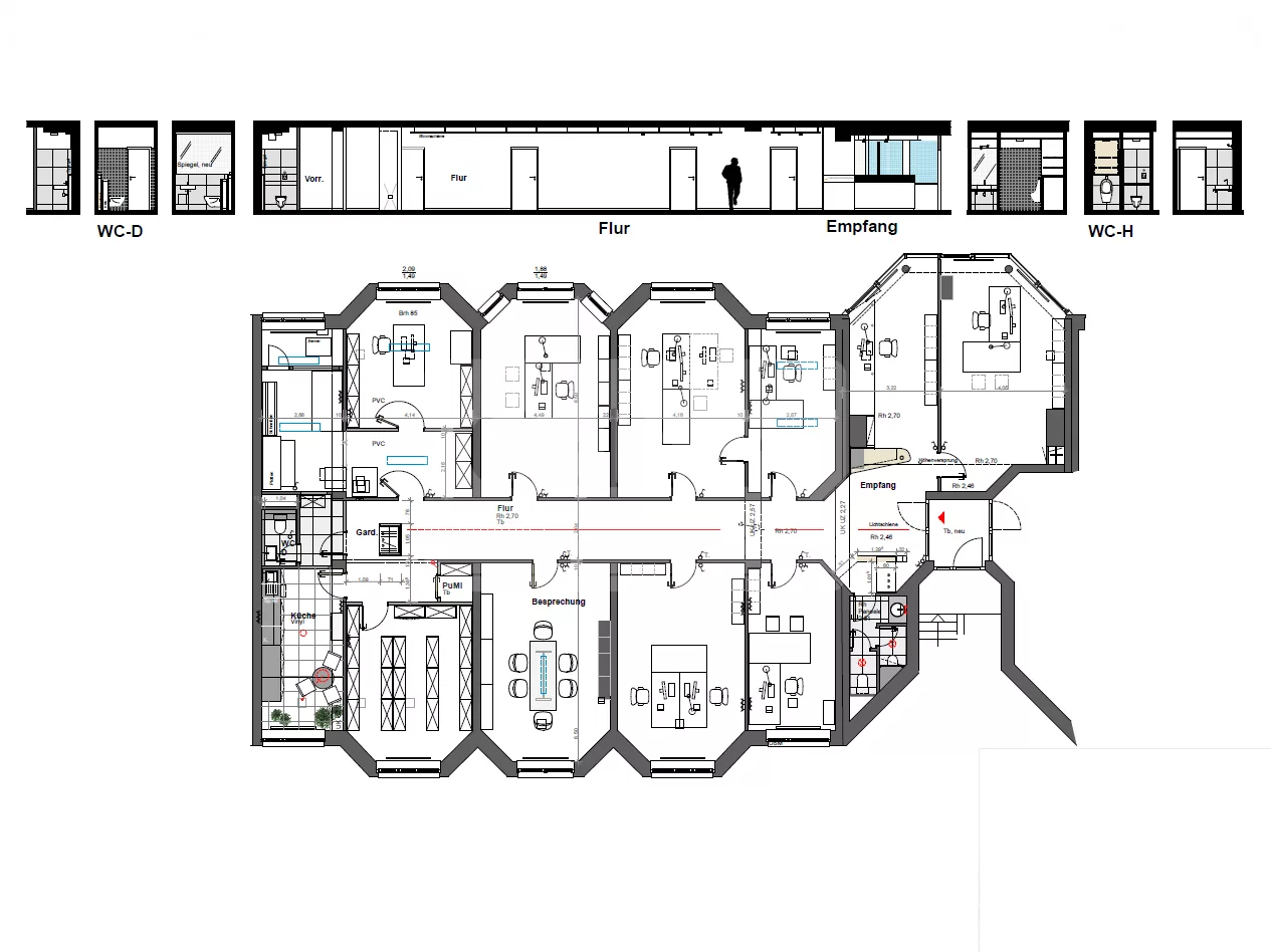
Büro | Zur Miete: 10,50 €/m2 | Objekt-ID: D_P11716

Marion Heinrichs

Düsseldorf Büro

+49 211 862062-0







    Wir verwenden Ihre Angaben zweckgebunden zur Bearbeitung Ihrer Anfrage. Weiter Informationen finden Sie in unsere Datenschutzerklärung.



    Fläche
    310 m2
    Teilbar ab
    310 m2
    Mietpreis ab
    10,50 €/m2
    Verfügbar ab
    kurzfristig

    - Optimale Anbindung zum ÖPNV

    • Teppichboden
    • Personenaufzug
    • Hohlraumboden
    • Teeküche
    • Rasterleuchten

    Energieausweis

    • Energieausweistyp: Bedarf
    • Gültig bis: 30.10.2034

    Provision

    Bei Verträgen bis zu 5 Jahren Laufzeit ist ein Honorar von 3 NMM zahlbar; bei Laufzeiten bis zu 10 Jahren werden 4 und bei Verlängerungsoptionen 1 NMM fällig. Hinzu kommt die jeweils gültige USt.

    Baujahr

    1989

    Ähnliche Objekte in der Nähe

    Marion Heinrichs

    Düsseldorf Büro