Petersstraße 20, 04109 Leipzig

✅ Moderne Büroflächen im Leipziger Zentrum

Büro | Zur Miete: 20,00 €/m2 | Objekt-ID: EXT-001952

Isabelle Ritter

+49 341 2182990 42







    Wir verwenden Ihre Angaben zweckgebunden zur Bearbeitung Ihrer Anfrage. Weiter Informationen finden Sie in unsere Datenschutzerklärung.



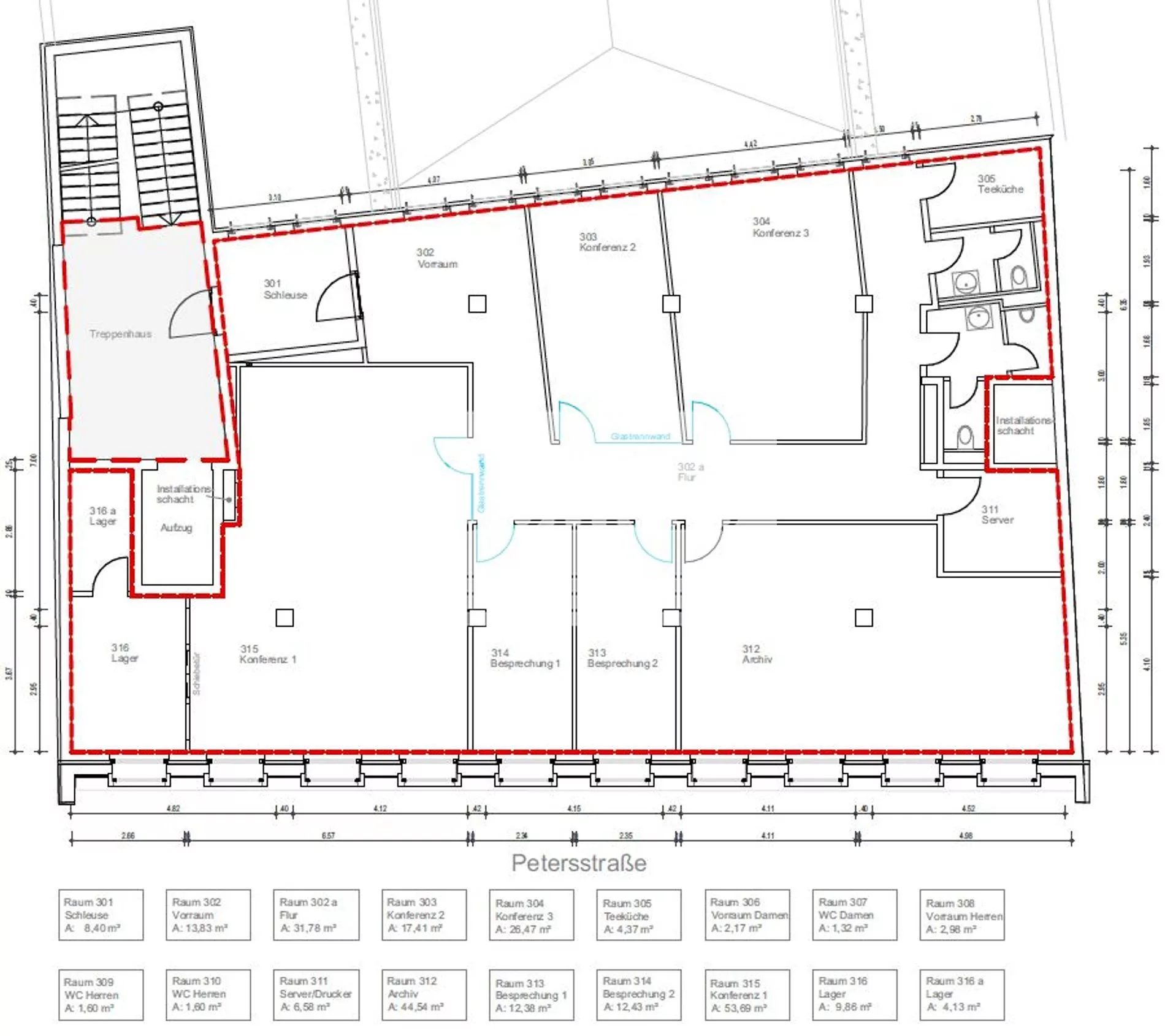
    Fläche
    289 m2
    Mietpreis ab
    20,00 €/m2
    Verfügbar ab
    k.A.

    Die Büroflächen befinden sich in im historischen Messehaus "Petershof" im Leipziger Stadtzentrum, unmittelbar auf der belebten Einkaufsstraße, der Petersstraße. Derzeit stehen zwei Mieteinheiten im 3. und 4. Obergeschoss der Immobilie zur Anmietung zur Verfügung. Die Flächen verfügen über einen modernen Ausbau mit industriellen Backsteinwänden. Zahlreiche Fenster sowie großzügigen Glaselemente sorgen für lichtdurchflutete Büroräume und eine angenehme Arbeitsatmosphäre. Jede Einheit verfügt über eine eigene Office-Küche sowie moderne, geschlechtergetrennte WC-Anlagen.

    • Dienstleistungen im Haus: Fitnessstudio
    • Sonnenschutz: Sonnen-/Blendschutz teilweise vorhanden

    Energieausweis

    • Energieausweis: bei Besichtigung

    Sonstige Angaben

    Colliers International ist ein weltweit agierendes Unternehmen für Immobilien-Dienstleistungen mit mehr als 18.000 Experten, die aus mehr als 403 Büros in 68 Ländern tätig sind. Das Unternehmen bietet eine umfassende Palette von Dienstleistungen für Immobilien-Nutzer, Eigentümer und Investoren einschließlich: Corporate Solutions, Objektbewertung und -beratung, Projektentwicklungsberatung, Investment Services, Immobilien- und Asset-Management, Projektmanagement, Research und Prognosen.

    Ähnliche Objekte in der Nähe