City

Wo die Alster in die Elbe mündet. Ihr neues Büro am Rödingsmarkt!

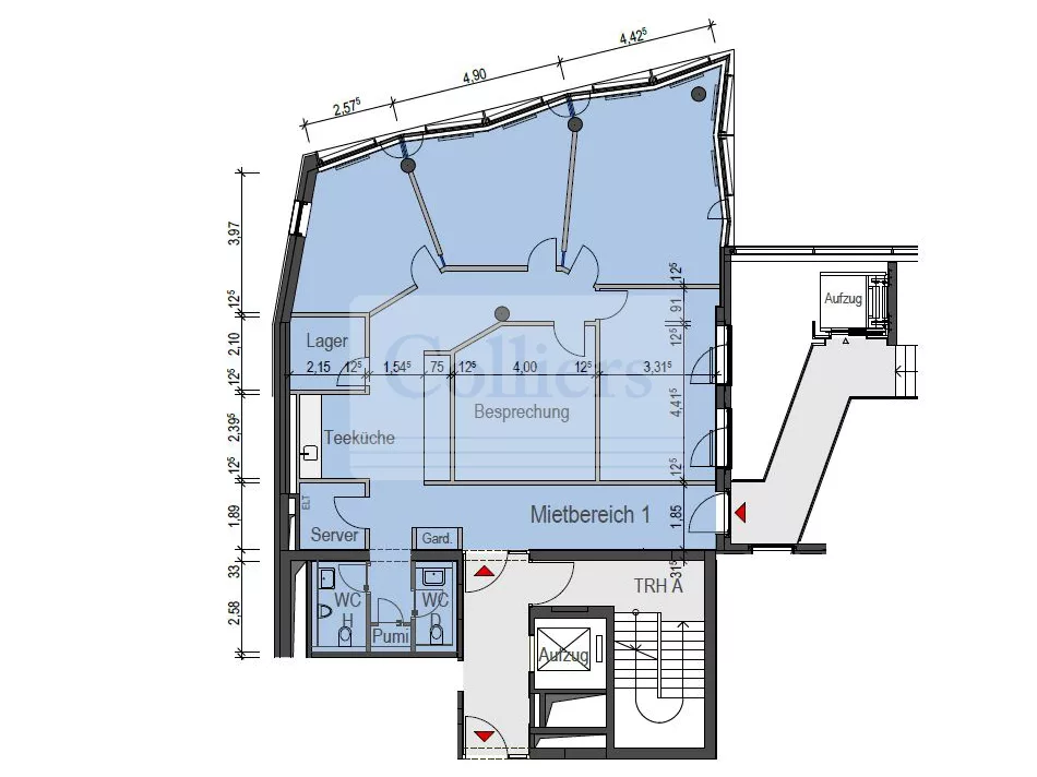
Büro | Zur Miete: 28,00 €/m2 | Objekt-ID: H_P1503/G1/E7/Eh1

Team Bürovermietung

Hamburg Büro

040 328 701-0







    Wir verwenden Ihre Angaben zweckgebunden zur Bearbeitung Ihrer Anfrage. Weiter Informationen finden Sie in unsere Datenschutzerklärung.



    Fläche
    179 m2
    Teilbar ab
    179 m2
    Mietpreis ab
    28,00 €/m2
    Verfügbar ab
    ab 01.01.2026
    • Objektart: Bestandsimmobilie
    • Deckenhöhe: auf Anfrage
    • Achsmaß: auf Anfrage
    • Verkabelungsort: Hohlraumoden
    • Fahrradstellplätze: auf Anfrage
    • E-Lademöglichkeiten: auf Anfrage
    • Glasfaseranschluss: auf Anfrage
    • Öffenbare Fenster: auf Anfrage
    • Mechanische Be- und Entlüftung: auf Anfrage
    • Barrierefreiheit: auf Anfrage
    • Cat-7 Verkabelung vorhanden
    • Außenliegender Sonnenschutz vorhanden
    • Kühlung über Bauteilaktivierung/Lüftung vorhanden
    • Personenaufzüge vorhanden

    Energieausweis

    • Energieausweistyp: Verbrauch
    • Gültig bis: 29.04.2031

    Provision

    Honorarfrei für den Mieter

    Baujahr

    2010

    Ähnliche Objekte in der Nähe

    Team Bürovermietung

    Hamburg Büro