Hamburg

Neptunhaus, Solitär mit Wasserblick

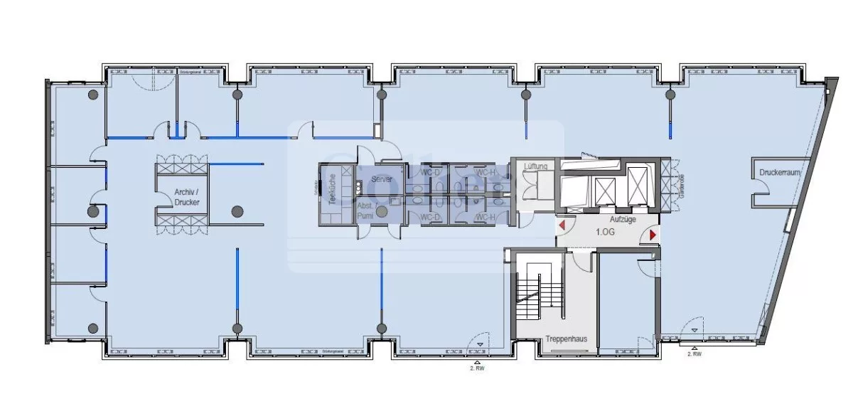
Büro | Zur Miete: 26,00 €/m2 | Objekt-ID: H_P1733/G1/E2/Eh1

Team Bürovermietung

Hamburg Büro

040 328 701-0







    Wir verwenden Ihre Angaben zweckgebunden zur Bearbeitung Ihrer Anfrage. Weiter Informationen finden Sie in unsere Datenschutzerklärung.



    Fläche
    251 m2
    Teilbar ab
    250 m2
    Mietpreis ab
    26,00 €/m2
    Verfügbar ab
    nach Vereinbarung
    • Objektart: Bestandsimmobilie
    • Deckenhöhe: auf Anfrage
    • Achsmaß: ca. 1,35 m
    • Verkabelungsort: Bodentanks
    • Fahrradstellplätze: vorhanden
    • E-Lademöglichkeiten: vorhanden
    • Glasfaseranschluss: vorhanden
    • Öffenbare Fenster: vorhanden
    • Mechanische Be- und Entlüftung: vorhanden
    • Barrierefreiheit: ja
    • Cat-7 EDV-Verkabelung vorhanden
    • Außenliegender, elektrischer Sonnenschutz vorhanden
    • Kühlung vorhanden
    • Personenaufzug vorhanden

    Energieausweis

    • Energieausweistyp: Bedarf
    • Gültig bis: 12.04.2032

    Provision

    Honorarfrei für den Mieter

    Baujahr

    1971

    Ähnliche Objekte in der Nähe

    Team Bürovermietung

    Hamburg Büro