MUC - Zentrum Nord-West

Maxvorstadt – Klimatisierte Büros am Stiglmaierplatz

Büro | Zur Miete: 25,00 €/m2 | Objekt-ID: EXT-001174

Stefanie Mitterneder

+49 89 624294 57







    Wir verwenden Ihre Angaben zweckgebunden zur Bearbeitung Ihrer Anfrage. Weiter Informationen finden Sie in unsere Datenschutzerklärung.



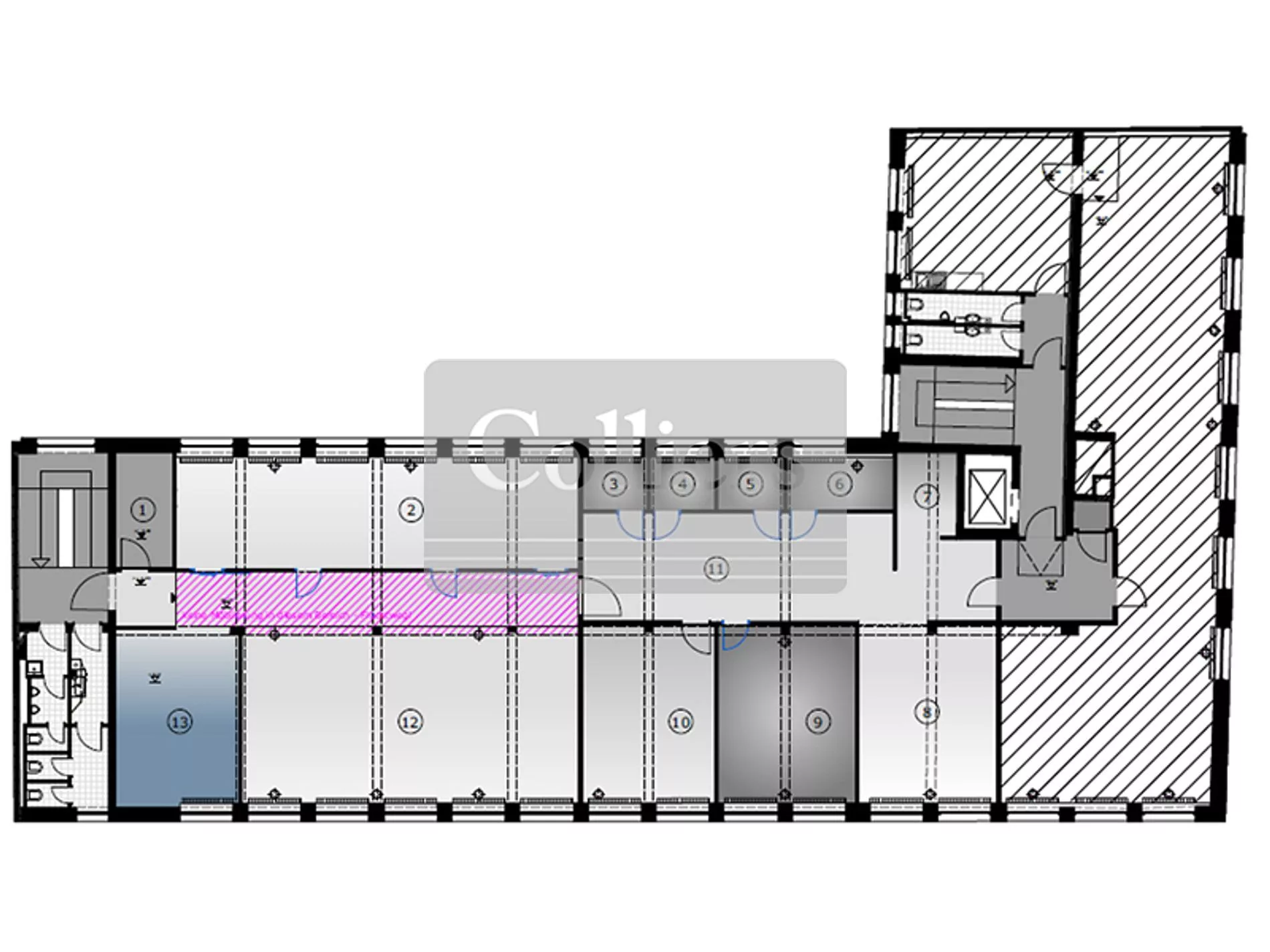
    Fläche
    831 m2
    Teilbar ab
    356 m2
    Mietpreis ab
    25,00 €/m2
    Verfügbar ab
    Kurzfristig
    • Ehemalige Kleiderfabrik - umfangreiche Neugestaltung
    • Betondecke, gespachtelt mit Akustikdeckensegel auf jeder Fensterachse
    • Stehleuchten - Modell Lanos von Zumtobel-Staff
    • Derzeitiger Ausbau mit Rigips und Glaselementen
    • Vollklimatisierte Einheiten, Wärmepumpe aus 2023
    • Begrünter Innenhof zur gemeinschaftlichen Nutzung wird neu gestaltet
    • Im Hochparterre Kann eine eigene Terrasse für den Mieter geschaffen werden
    • Dienstleistungen im Haus: Kantine
    • Fenster: Öffenbare Fenster
    • Sonnenschutz: Sonnenschutz außen
    • Zugangssystem: Zugangskontrollsystem auf Anfrage
    • Beleuchtung Büro: Beleuchtung auf Anfrage
    • Bodenbelag Büro: Teppichboden
    • Kühlung Büro: Vollklimatisierung
    • Teeküchen: Teeküche(n) vorhanden
    • Verkabelung Büro: CAT 7, Glasfaser, Doppelboden

    Energieausweis

    • Energieausweis: vorhanden

    Baujahr

    1961

    Sonstige Angaben

    Colliers International ist ein weltweit führendes Unternehmen im Bereich Immobiliendienstleistungen. Mehr als 24.000 Expertinnen und Experten arbeiten in 70 Ländern für das Unternehmen. Das Leistungsspektrum umfasst ganzheitliche Services für Immobiliennutzer, Eigentümer und Investoren, wie Corporate Solutions, Objektbewertung und -beratung, Projektentwicklungsberatung, Investment Services, Immobilien- und Asset-Management, Projektmanagement, Research und Marktprognosen.

    Ähnliche Objekte in der Nähe

    Stefanie Mitterneder