Airport City

Alleinvermietungsauftrag – Bürofläche unmittelbar am Flughafen zur Miete

Büro | Zur Miete: 17,75 €/m2 | Objekt-ID: D_K- P9365

Sandra Mazur

Düsseldorf Büro

+49 211 862062-0







    Wir verwenden Ihre Angaben zweckgebunden zur Bearbeitung Ihrer Anfrage. Weiter Informationen finden Sie in unsere Datenschutzerklärung.



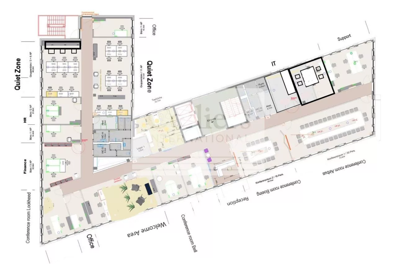
    Fläche
    800 m2
    Teilbar ab
    800 m2
    Mietpreis ab
    17,75 €/m2
    Verfügbar ab
    k.A.

    • 5-geschossiges Bürogebäude mit eingeschossiger Tiefgarage
    • Dachterrasse im 5. OG
    • BAP-Beleuchtung
    • Betonkernaktivierung
    • Hohlraumboden
    • Teeküche vorhanden
    • Teppichbodenbelag
    • Öffenbare Fenster
    • 2-Scheiben Verglasung mit Wärmeschutz Isolierglas
    • Teilweise bodentiefe Verglasung
    • Teilweise Verglasung im Flur
    • Elektrisch angetriebener Sonnenschutz mit Wind - und Sonnenwächter
    • Mobile, kurbelbetriebene Trennwandanlage in den Konferenzräumen
    • Luftaufbereitung durch mechanische Zufuhr von aufbereiteter Zuluft (Mindestluftwechselrate 1-fach)
    • Erhöhte Luftwechselrate 4-6-fach in Besprechungsräumen und Socialroom
    • Zusätzliche Kühlung durch Gebläsekonvektoren in den Konferenzräumen
    • Möbel können übernommen werden

    Energieausweis

    • Energieausweis liegt nicht vor

    Provision

    Eine Anmietung ist für den Mieter provisionsfrei.

    Baujahr

    2014

    Ähnliche Objekte in der Nähe

    Sandra Mazur

    Düsseldorf Büro