Zschortauer StraĂźe 76, 04129 Leipzig

🚛 Lagerflächen im Leipziger Norden | ab sofort | ca. 3.900 m² | teilbar

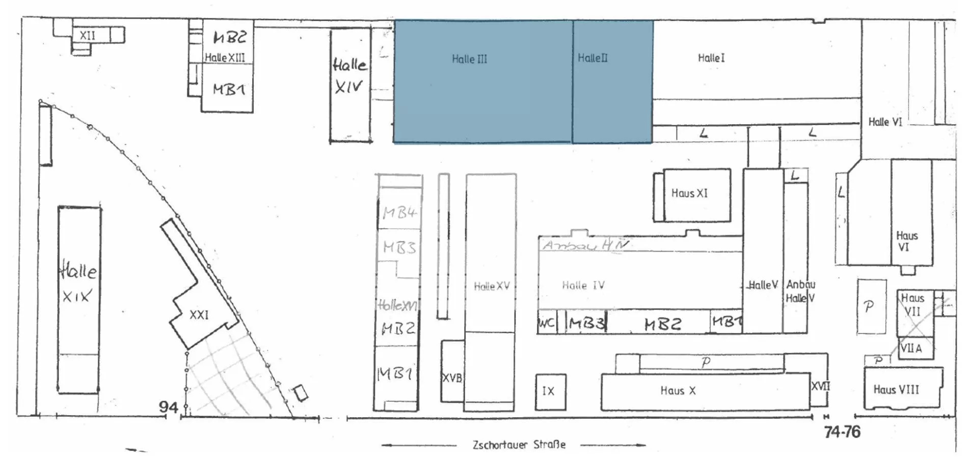
Industrie/Logistik | Objekt-ID: EXT-001594

Stephan Kloss

+49 151 74404254







    Wir verwenden Ihre Angaben zweckgebunden zur Bearbeitung Ihrer Anfrage. Weiter Informationen finden Sie in unsere Datenschutzerklärung.



    Fläche
    950 m2
    Teilbar ab
    350 m2
    Mietpreis ab
    auf Anfrage
    VerfĂĽgbar ab
    ab sofort
    • Die Liegenschaft befindet sich in einem gewachsenen Gewerbeumfeld im Leipziger Norden und ĂĽberzeugt durch ihren markanten Industriecharakter. Die historische Halle mit imposanten Deckenhöhen von bis zu 14,30 m ist mit Krananlagen ausgestattet und bietet ideale Voraussetzungen fĂĽr produzierendes Gewerbe oder werkstattnahe Nutzungen. Die verkehrstechnische Anbindung ist hervorragend – sowohl das Stadtzentrum als auch ĂĽberregionale Verkehrsachsen sind schnell erreichbar.
    • Jetzt einen Monat mietfrei sichern -
    • FĂĽr dieses Objekt bietet Colliers die Möglichkeit, einen zusätzlichen mietfreien Monat zu erhalten. Dies gilt zusätzlich zu eventuellen weiteren mietfreien Monaten, die nach individueller Vereinbarung/Verhandlung mit dem Vermieter gewährt werden können. Bitte beachten Sie, dass der zusätzliche mietfreie Monat nicht automatisch gewährt wird und nur im Rahmen einer erfolgreichen Anmietung sowie nach gesonderter Absprache mit dem Vermieter und Colliers zur Anwendung kommt. Weitere Details erhalten Sie gerne auf Anfrage.
    • UKB in m von 7,80 bis 14,30
    • Bodenbelastbarkeit 5,00 t/m²
    • Umfahrbar
    • Betonboden
    • Krananlagen

    Energieausweis

    • Energieausweis: nicht erforderlich

    Sonstige Angaben

    Colliers International ist ein weltweit agierendes Unternehmen für Immobilien-Dienstleistungen mit mehr als 18.000 Experten, die aus mehr als 403 Büros in 68 Ländern tätig sind. Das Unternehmen bietet eine umfassende Palette von Dienstleistungen für Immobilien-Nutzer, Eigentümer und Investoren einschließlich: Corporate Solutions, Objektbewertung und -beratung, Projektentwicklungsberatung, Investment Services, Immobilien- und Asset-Management, Projektmanagement, Research und Prognosen.