Feldkirchen

Lagerhalle in Feldkirchen – flexible Fläche in TOP-Lage

Industrie/Logistik | Objekt-ID: EXT-001439

Joelle Bühler

+49 151 67140411







    Wir verwenden Ihre Angaben zweckgebunden zur Bearbeitung Ihrer Anfrage. Weiter Informationen finden Sie in unsere Datenschutzerklärung.



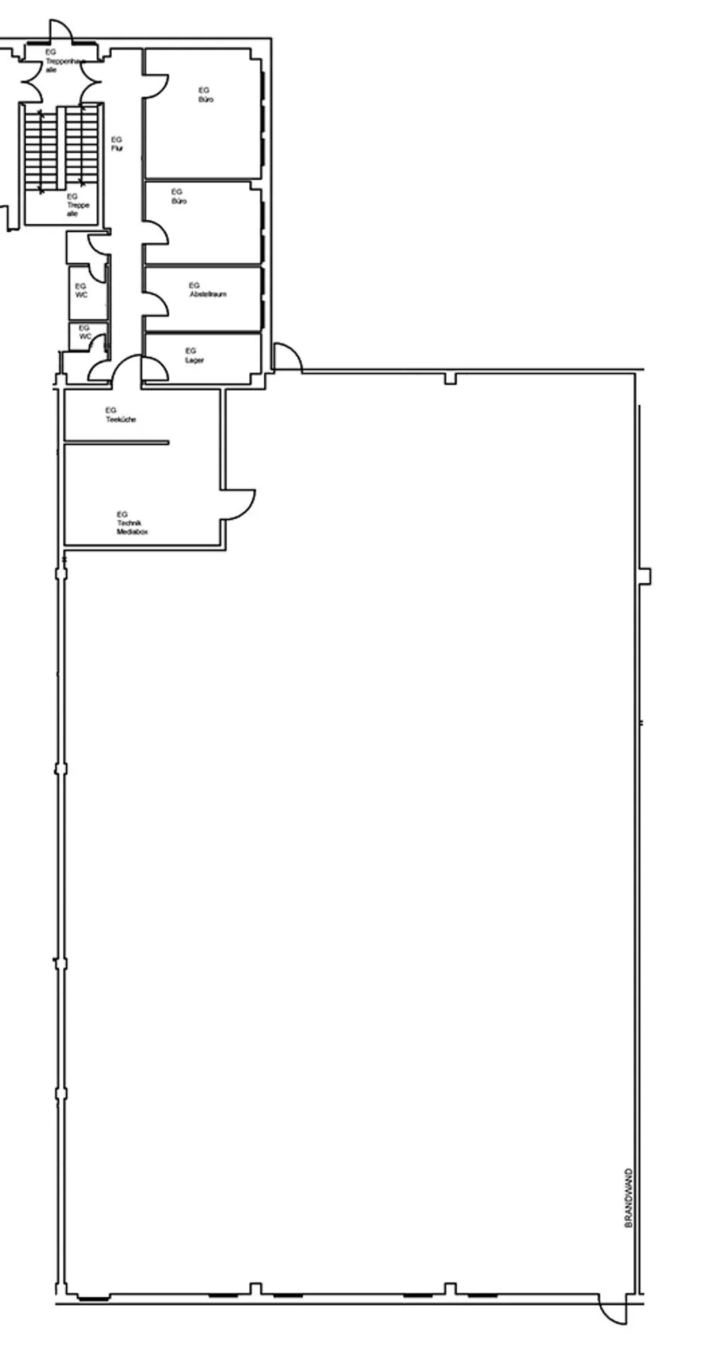
    Fläche
    857 m2
    Mietpreis ab
    auf Anfrage
    Verfügbar ab
    Ab sofort
    • Vielseitig nutzbare Hallenfläche (ca. 740 m²) mit Büro (ca. 120 m²) in sehr gutem Zustand
    • Dach komplett neu
    • Gasheizung mit Gebläse
    • Klimaanlage kann mieterseits nachgerüstet werden
    • Nicht unterkellert
    • DSL mit 16 mbit
    • Separate Strom-, Wasserzähler
    • Brandmeldeanlage
    • Heizung: Gas-Heizung
    • Bodenbelag I&L: Betonboden
    • Gefahrstofflagerung: Nein
    • Bodenbelastbarkeit ca. 5 t/m²
    • Sprinkleranlage: Sprinkler nicht vorhanden
    • Umfahrbarkeit: umfahrbar

    Energieausweis

    • Energieausweis: vorhanden

    Baujahr

    1995

    Sonstige Angaben

    Dieses Objekt wird im Leadmakler-Auftrag von Colliers International Deutschland GmbH betreut. Colliers International ist ein weltweit agierendes Unternehmen für Immobilien-Dienstleistungen mit mehr als 18.000 Experten, die aus mehr als 403 Büros in 68 Ländern tätig sind. Das Unternehmen bietet eine umfassende Palette von Dienstleistungen für Immobilien-Nutzer, Eigentümer und Investoren einschließlich: Corporate Solutions, Objektbewertung und -beratung, Projektentwicklungsberatung, Investment Services, Immobilien- und Asset-Management, Projektmanagement, Research und Prognosen.