MUC - Stadt Nord-Ost

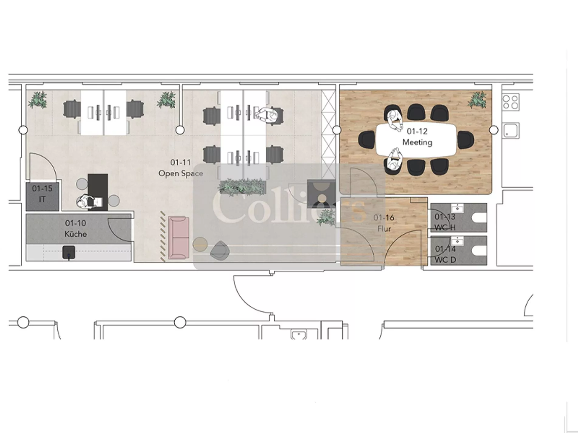
Praxis- und Büroflächen im MedNord in Freimann

Büro | Zur Miete: 16,30 €/m2 | Objekt-ID: EXT-002146

Christina Stölten

+49 89 624294 658







    Wir verwenden Ihre Angaben zweckgebunden zur Bearbeitung Ihrer Anfrage. Weiter Informationen finden Sie in unsere Datenschutzerklärung.



    Fläche
    206 m2
    Teilbar ab
    84 m2
    Mietpreis ab
    16,30 €/m2
    Verfügbar ab
    Kurzfristig
    • Lichtdurchflutete Erdgeschossfläche als Büro oder Einzelhandelsfläche nutzbar
    • Sehr gute Infrastruktur
    • 2 getrennte WC´s
    • Dienstleistungen im Haus: Kantine
    • Fenster: Öffenbare Fenster
    • Heizung: Gas-Heizung
    • Sonnenschutz: Blendschutz innen
    • Zugangssystem: Schließsystem mechanisch
    • Beleuchtung Büro: Rasterleuchten
    • Belüftung Büro: Fensterlüftung
    • Bodenbelag Büro: Laminatboden
    • Teeküchen: Teeküche(n) vorhanden
    • Verkabelung Büro: Verkabelung mieterseitig, Glasfaser

    Energieausweis

    • Energieausweis: bei Besichtigung

    Baujahr

    2003

    Sonstige Angaben

    Colliers International ist ein weltweit agierendes Unternehmen für Immobilien-Dienstleistungen mit mehr als 18.000 Experten, die aus mehr als 403 Büros in 68 Ländern tätig sind. Das Unternehmen bietet eine umfassende Palette von Dienstleistungen für Immobilien-Nutzer, Eigentümer und Investoren einschließlich: Corporate Solutions, Objektbewertung und -beratung, Projektentwicklungsberatung, Investment Services, Immobilien- und Asset-Management, Projektmanagement, Research und Prognosen.

    Ähnliche Objekte in der Nähe