MUC - Zentrum Süd-West

Schwanthalerhöhe-Laim – Werbewirksamer Standort

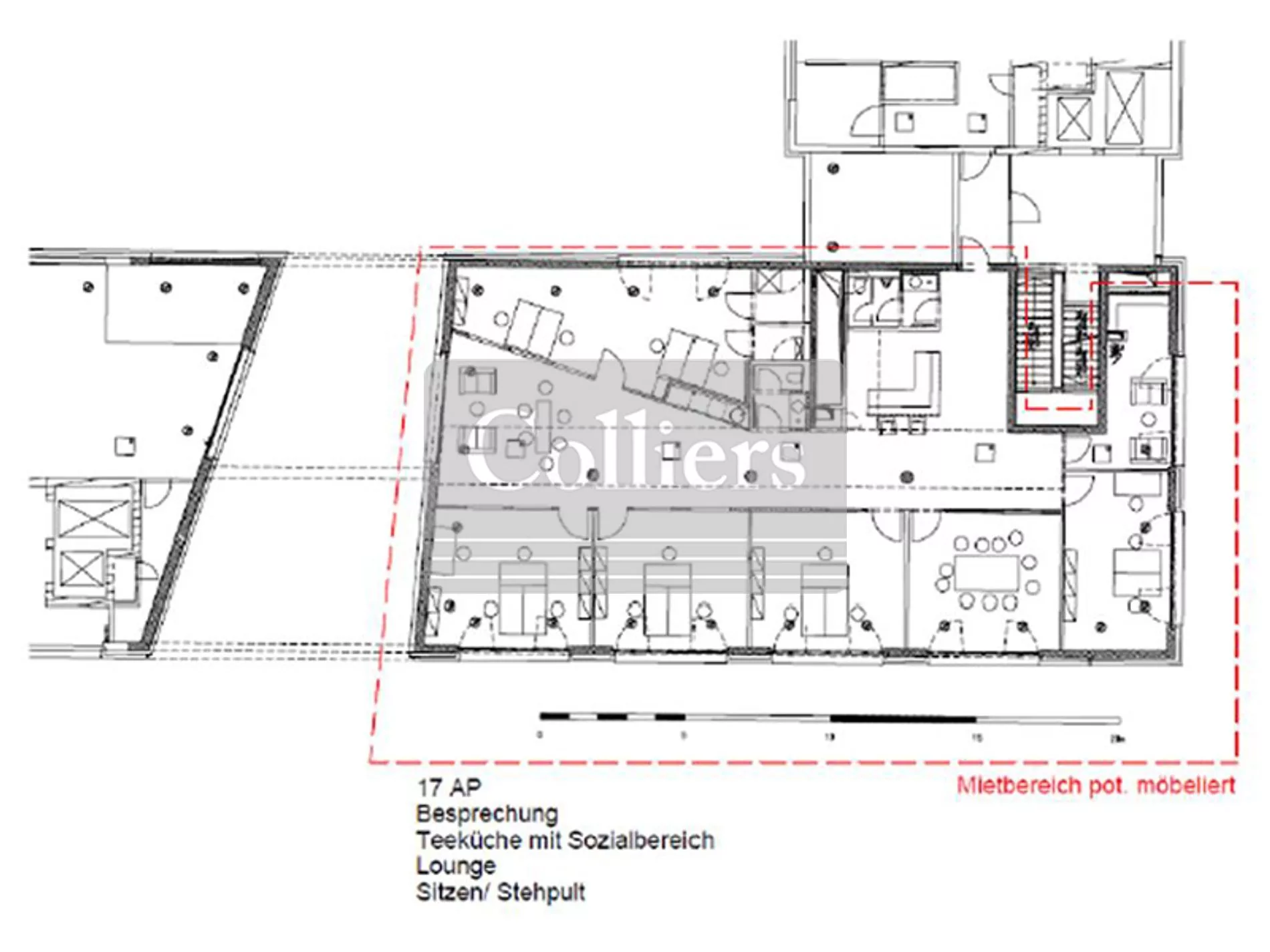
Büro | Zur Miete: 24,00 €/m2 | Objekt-ID: EXT-001076

Stefanie Mitterneder

+49 89 624294 57







    Wir verwenden Ihre Angaben zweckgebunden zur Bearbeitung Ihrer Anfrage. Weiter Informationen finden Sie in unsere Datenschutzerklärung.



    Fläche
    9.120 m2
    Teilbar ab
    274 m2
    Mietpreis ab
    24,00 €/m2
    Verfügbar ab
    Kurzfristig / Nach Vereinbarung
    • Büroprojekt mit Neubau- und Bestandsbebauung für die Medienbranche.
    • Grundstück und Gebäude nach Feng-Shui-Richtlinien.
    • Backsteinfassaden, glatte Putzfassaden in Kombination mit Glasumbau.
    • Modern und puristische Architektur in den Eingangsbereichen.
    • Mischung aus Industrie- und Loftstyle sowie Verzimmerung und Open Space.
    • Teilweise Duschen vorhanden.
    • Dienstleistungen im Haus: Kantine
    • Fenster: Öffenbare Fenster
    • Sonnenschutz: Elektrisch, Sonnenschutz außen
    • Zugangssystem: Zugangskontrollsystem auf Anfrage
    • Balkon / Terrasse: Balkon / Terrasse zur exklusiven Nutzung
    • Beleuchtung Büro: LED Beleuchtung
    • Bodenbelag Büro: Bodenbelag nach Vereinbarung
    • Kühlung Büro: Kühlung auf Anfrage, Be- und Entlüftung, Fensterlüftung
    • Teeküchen: Teeküche(n) vorhanden
    • Verkabelung Büro: CAT 7
    • Lichte Büro Raumhöhe in m von 3,10 bis 4,30

    Energieausweis

    • Energieausweis: nicht erforderlich

    Baujahr

    1978

    Sonstige Angaben

    Colliers International ist ein weltweit führendes Unternehmen im Bereich Immobiliendienstleistungen. Mehr als 24.000 Expertinnen und Experten arbeiten in 70 Ländern für das Unternehmen. Das Leistungsspektrum umfasst ganzheitliche Services für Immobiliennutzer, Eigentümer und Investoren, wie Corporate Solutions, Objektbewertung und -beratung, Projektentwicklungsberatung, Investment Services, Immobilien- und Asset-Management, Projektmanagement, Research und Marktprognosen.

    Ähnliche Objekte in der Nähe

    Stefanie Mitterneder