Rohrteichstraße 16, 04347 Leipzig

✅ Flexible Gewerbeflächen im Osten von Leipzig

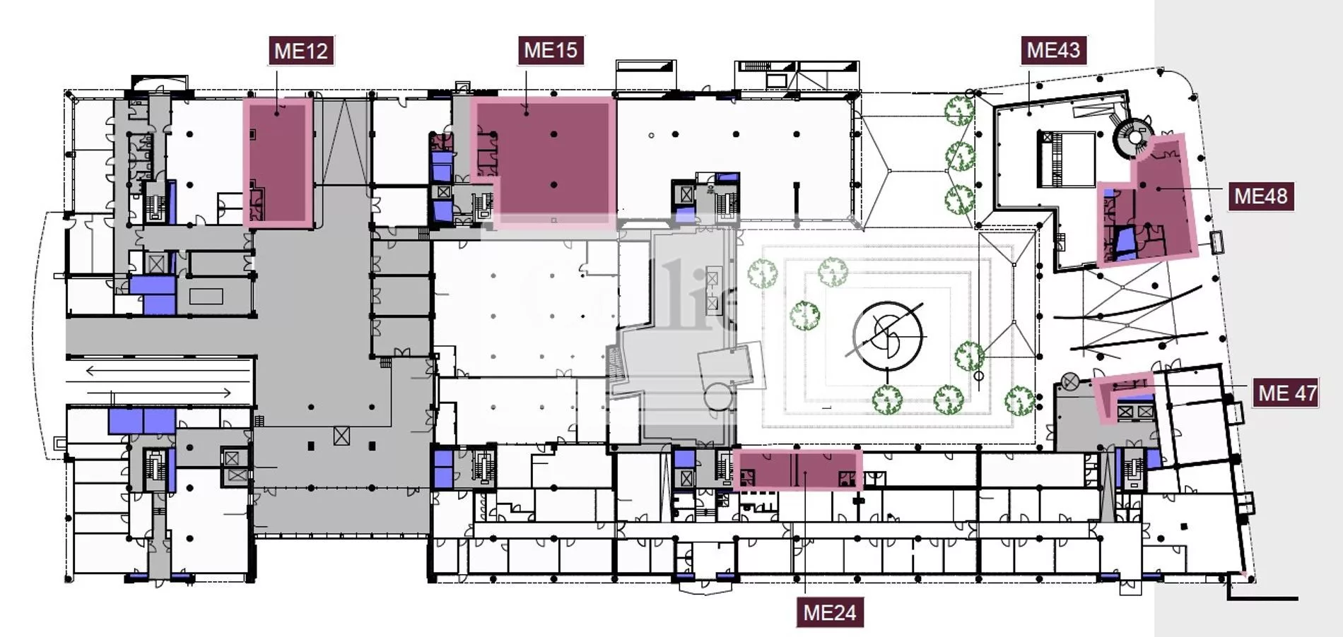
Büro | Zur Miete: 11,15 €/m2 | Objekt-ID: EXT-001991

Isabelle Ritter

+49 341 2182990 42







    Wir verwenden Ihre Angaben zweckgebunden zur Bearbeitung Ihrer Anfrage. Weiter Informationen finden Sie in unsere Datenschutzerklärung.



    Fläche
    338 m2
    Mietpreis ab
    11,15 €/m2
    Verfügbar ab
    k.A.
    • Das hochwertige Büro- und Geschäftshaus "Forum am Mariannenpark" erstreckt sich mit einer Gesamtfläche von ca. 35.000 m² über insgesamt 7 Etagen. Das Gebäude verfügt über mehrere Fahrstühle und Aufzugskerne sowie ein sicheres Zugangssystem und einen Wachdienst. Zudem zeichnet sich die Immobilie durch ein repräsentatives und begrüntes Atrium, einen Innenhof sowie eine Kantine aus, welche von den Mietern in den Pausenzeiten genutzt werden kann.
    • In der mehrgeschossigen, objekteigenen Tiefgarage stehen darüber hinaus zahlreiche Stellplätze zur Verfügung.
    • Zusätzlich stehen in der Immobilie Lagerflächen zur Anmietung zur Verfügung.
    • Aufgrund des flexiblen Grundrisses können verschiedene Arbeitsplatzkonzepte von Einzelverzimmerung bis hin zu Open-Space-Flächen realisiert werden. Zahlreiche Fenster sorgen für ausreichend Tageslicht und eine angenehme Arbeitsatmosphäre.
    • Fenster: Öffenbare Fenster
    • Heizung: Fernwärme
    • Sonnenschutz: Sonnen-/Blendschutz auf Anfrage
    • Zugangssystem: Schließsystem auf Anfrage
    • Bodenbelag Büro: Bodenbelag nach Vereinbarung
    • Kühlung Büro: Klimatisierung
    • Teeküchen: Teeküche(n) vorhanden
    • Verkabelung Büro: Bodentanks
    • Zertifizierung: BREEAM Sehr gut, WELL

    Energieausweis

    • Energieausweis: vorhanden

    Baujahr

    1992

    Sonstige Angaben

    Colliers International ist ein weltweit agierendes Unternehmen für Immobilien-Dienstleistungen mit mehr als 18.000 Experten, die aus mehr als 403 Büros in 68 Ländern tätig sind. Das Unternehmen bietet eine umfassende Palette von Dienstleistungen für Immobilien-Nutzer, Eigentümer und Investoren einschließlich: Corporate Solutions, Objektbewertung und -beratung, Projektentwicklungsberatung, Investment Services, Immobilien- und Asset-Management, Projektmanagement, Research und Prognosen.

    Ähnliche Objekte in der Nähe