Martin-Luther-Ring 13, 04109 Leipzig

✅ Büroflächen am Leipziger Innenstadtring

Büro | Zur Miete: 12,50 €/m2 | Objekt-ID: EXT-001968

Isabelle Ritter

+49 341 2182990 42







    Wir verwenden Ihre Angaben zweckgebunden zur Bearbeitung Ihrer Anfrage. Weiter Informationen finden Sie in unsere Datenschutzerklärung.



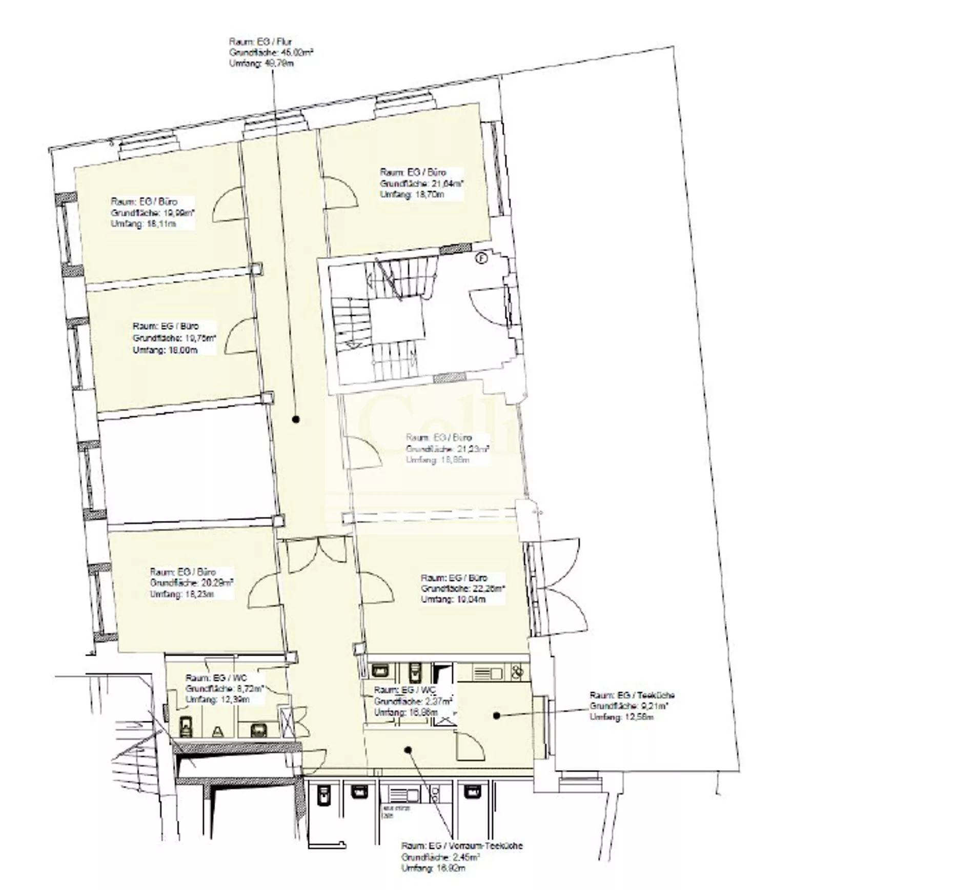
    Fläche
    212 m2
    Mietpreis ab
    12,50 €/m2
    Verfügbar ab
    k.A.
    • Das repräsentative Gebäude "Lipanum" verfügt über ein repräsentatives Foyer mit Natursteinelementen sowie Treppenhäuser mit historischen Holztreppen. Derzeit stehen im Erdgeschoss sowie im 3. Obergeschoss Büroflächen zur Anmietung zur Verfügung.
    • Die Flächen können nach den individuellen Wünschen der zukünftigen Mieter ausgebaut werden.
    • Fenster: Öffenbare Fenster
    • Sonnenschutz: Sonnenschutz außen
    • Zugangssystem: Schließsystem auf Anfrage

    Energieausweis

    • Energieausweis: nicht erforderlich

    Baujahr

    1915

    Sonstige Angaben

    Colliers International ist ein weltweit agierendes Unternehmen für Immobilien-Dienstleistungen mit mehr als 18.000 Experten, die aus mehr als 403 Büros in 68 Ländern tätig sind. Das Unternehmen bietet eine umfassende Palette von Dienstleistungen für Immobilien-Nutzer, Eigentümer und Investoren einschließlich: Corporate Solutions, Objektbewertung und -beratung, Projektentwicklungsberatung, Investment Services, Immobilien- und Asset-Management, Projektmanagement, Research und Prognosen.

    Ähnliche Objekte in der Nähe