City-Süd Hamburg

Direkt an der Bille!

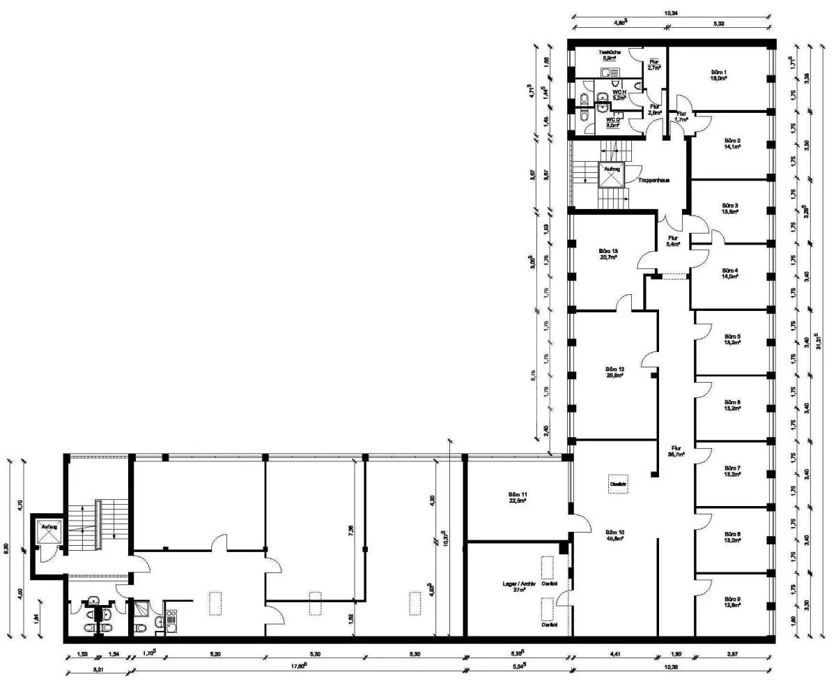
Büro | Objekt-ID: H_P3454/G2/E3

Team Bürovermietung

Hamburg Büro

040 328 701-0







    Wir verwenden Ihre Angaben zweckgebunden zur Bearbeitung Ihrer Anfrage. Weiter Informationen finden Sie in unsere Datenschutzerklärung.



    Fläche
    195 m2
    Teilbar ab
    195 m2
    Mietpreis ab
    7,25 €/m2
    Verfügbar ab
    Kurzfristig
    • Effiziente Raumteilungsmöglichkeiten
    • Flexible Vertragslaufzeiten
    • Direkte Rampenandienung im UG
    • Ausbau nach Mieterwunsch
    • Helle Büroflächen und helles Treppenhaus
    • Verkabelung nach Absprache
    • Teilweise innenliegender Sonnenschutz
    • Fensterlüftung möglich
    • Personenaufzug vorhanden

    Energieausweis

    • Energieausweis liegt nicht vor

    Provision

    Honorarfrei für den Mieter

    Baujahr

    1965

    Sonstige Angaben

    Uns liegt derzeit noch kein Energieausweis vor

    Ähnliche Objekte in der Nähe

    Team Bürovermietung

    Hamburg Büro