City

futuristisch | hochwertig | individuell

Büro | Objekt-ID: H_P2693/G1/E2

Team Bürovermietung

Hamburg Büro

040 328 701-0







    Wir verwenden Ihre Angaben zweckgebunden zur Bearbeitung Ihrer Anfrage. Weiter Informationen finden Sie in unsere Datenschutzerklärung.



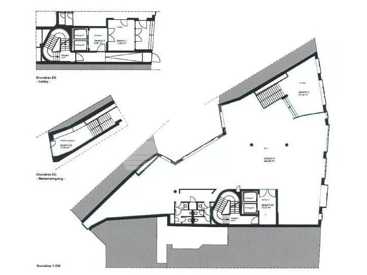
    Fläche
    437 m2
    Teilbar ab
    437 m2
    Mietpreis ab
    21,00 €/m2
    Verfügbar ab
    nach Vereinbarung
    • Das Steckelhörn 11 wurde 2009 vom renommierten Architekturbüro Jürgen Mayer H. entworfen und bietet hochwertige Büroflächen in der direkten Nachbarschaft zur Speicherstadt
    • Die futuristische Keramikfassade mit großen Fensterflächen sorgt für lichtdurchflutete Arbeitsbereiche
    • Farbig gestaltete Personenaufzüge, die vom minimalistischen Entrée starten, erschließen die individuell gestaltbaren Büroetagen
    • Der Grundriss erlaubt flexible Open-Space-Büros und eine individualisierbare Flächennutzung
    • Im 8. Obergeschoss steht eine exklusive Dachterrasse mit Weitblick zur alleinigen Nutzung zur Verfügung
    • EDV-Verkabelung auf Cat-7 Basis vorhanden
    • Innenliegender Blendschutz vorhanden
    • Fensterlüftung möglich
    • Personenaufzug vorhanden

    Energieausweis

    • Energieausweistyp: Verbrauch
    • Gültig bis: 30.04.2024

    Provision

    Honorarfrei für den Mieter

    Baujahr

    2010

    Ähnliche Objekte in der Nähe

    Team Bürovermietung

    Hamburg Büro