HafenCity Hamburg

Loft im Herzen der HafenCity!

Büro | Zur Miete: 18,50 €/m2 | Objekt-ID: H_P2468/G2/E3/Eh1

Roland Schroers

Hamburg Büro

040 328 701-0







    Wir verwenden Ihre Angaben zweckgebunden zur Bearbeitung Ihrer Anfrage. Weiter Informationen finden Sie in unsere Datenschutzerklärung.



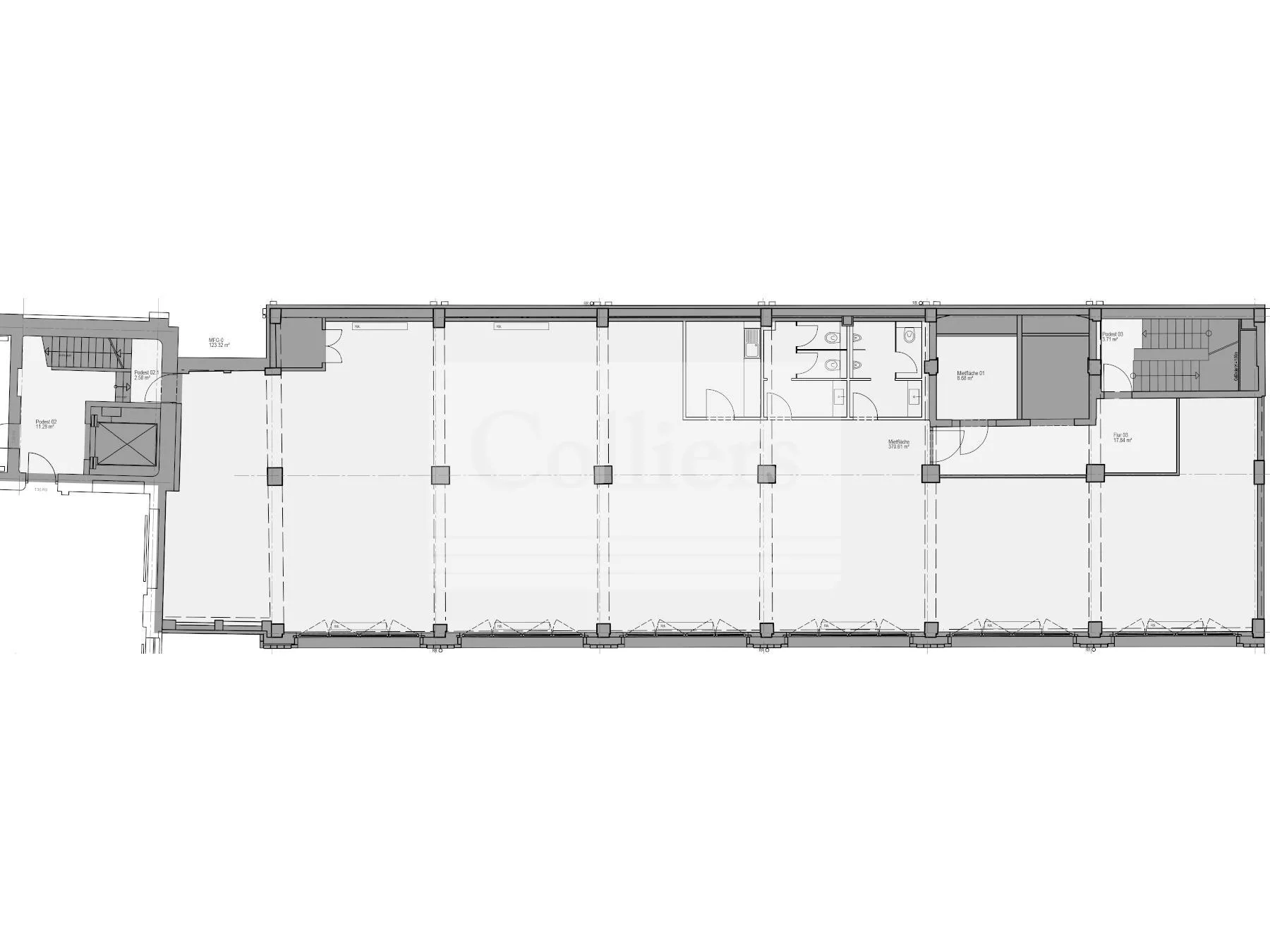
    Fläche
    456 m2
    Teilbar ab
    456 m2
    Mietpreis ab
    18,50 €/m2
    Verfügbar ab
    Kurzfristig
    • Loftflächen mit industriellem Charme
    • Flexible Raumaufteilung
    • Deckenhöhe von 4 m
    • Moderne Aufstockung
    • Hochwertiger Ausbau
    • CAT 7 Verkabelung
    • Fensterlüftung
    • Personenaufzug vorhanden

    Energieausweis

    • Energieausweis liegt nicht vor

    Provision

    3,00 Brutto-Monatsmieten zzgl. USt.

    Baujahr

    1906

    Sonstige Angaben

    Uns liegt derzeit noch kein Energieausweis vor

    Ähnliche Objekte in der Nähe

    Roland Schroers

    Hamburg Büro