Berlin

„Friedrich-Haus“

Büro | Zur Miete: 34,00 €/m2 | Objekt-ID: B_P25487/G1

Team Office Letting

Berlin Büro

+49 30 202993-0







    Wir verwenden Ihre Angaben zweckgebunden zur Bearbeitung Ihrer Anfrage. Weiter Informationen finden Sie in unsere Datenschutzerklärung.



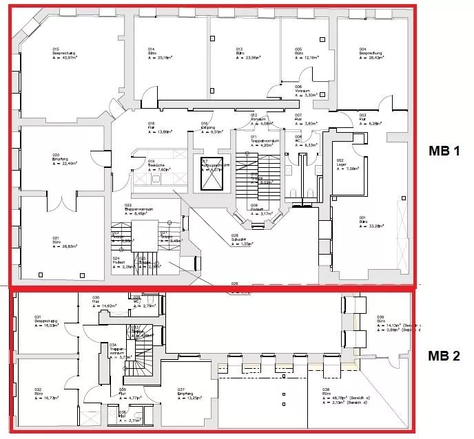
    Fläche
    834 m2
    Teilbar ab
    164 m2
    Mietpreis ab
    34,00 €/m2
    Verfügbar ab
    Q3 2023
    • gesamte Fläche des Gebäudes: 2.811 m²
    • Stellplätze vorhanden
    • Baujahr: 1856
    • Letzte Sanierung: 1995
    • Öffenbare Fenster
    • Kabelführung: Fensterbankkanal
    • Barrierefrei
    • Teeküche vorhanden
    • Kühlung optional
    • 1 Personenaufzug
    • Rauchmelder
    • Gegensprechanlage & Kameraüberwachung
    • Denkmalschutz
    • Parkettboden
    • gesamt 15 Stellplätze (Preis auf Anfrage)
    • Grundbeleuchtung über Deckenbeleuchtung
    • CAT 7 Verkabelung über Bodentanks
    • Deckenhöhe 2,80 m
    • Sonnenschutz außen elektrisch

    Energieausweis

    • Energieausweis liegt nicht vor

    Provision

    Die Anmietung dieser Flächen ist für den Mieter honorarfrei.

    Baujahr

    1856

    Ähnliche Objekte in der Nähe

    Team Office Letting

    Berlin Büro