Berlin

Haus am Zentrum

Büro | Zur Miete: 38,00 €/m2 | Objekt-ID: B_P25403/G1

Arielle Wozny

Berlin Büro







    Wir verwenden Ihre Angaben zweckgebunden zur Bearbeitung Ihrer Anfrage. Weiter Informationen finden Sie in unsere Datenschutzerklärung.



    Fläche
    6.073 m2
    Teilbar ab
    449 m2
    Mietpreis ab
    38,00 €/m2
    Verfügbar ab
    In Absprache mit dem Vermieter.
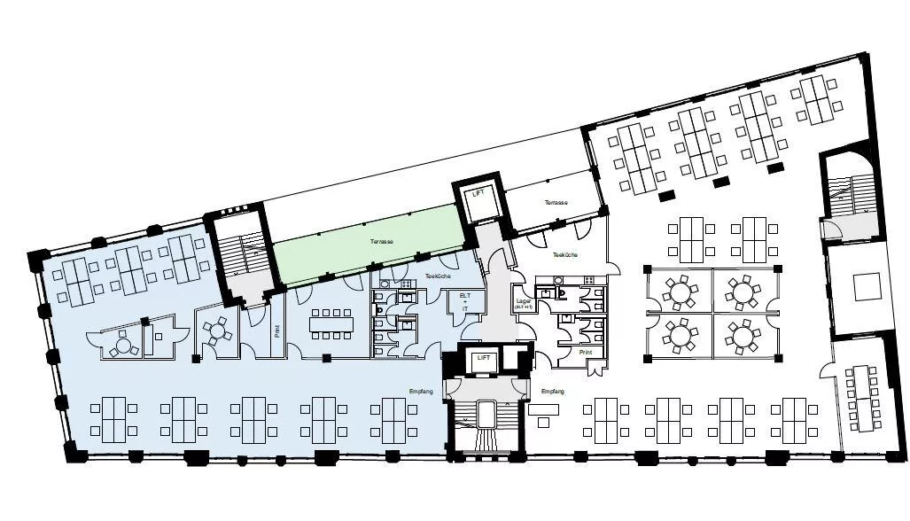
    • das sechsgeschossige Gebäude wurde 1913 erbaut und befindet sich in Berlin Friedrichshain
    • denkmalgeschütztes Haus mit hochwertiger Flächenausstattung
    • Pendelleuchten
    • CAT-7 Kabeltrassen
    • Parkettboden
    • Kühlung nach Vereinbarung, Be- und Entlüftung
    • Deckenhöhe bis zu 4,60 m, Akustikputzdecken
    • Sonnenschutz außenliegend elektrisch
    • Teeküche
    • zwei Personenaufzüge
    • flexible Grundrissgestaltung
    • exklusive Terrasse
    • öffenbare Fenster, teilweise dreifach Verglasung
    • Zugangskontrolle auf Anfrage
    • Konferenzräume
    • getrennte Sanitäreinheiten

    Energieausweis

    • Energieausweis liegt nicht vor

    Provision

    Die Anmietung dieser Flächen ist für den Mieter honorarfrei.

    Ähnliche Objekte in der Nähe

    Arielle Wozny

    Berlin Büro