Berlin

„PRINZ17“

Büro | Zur Miete: 27,00 €/m2 | Objekt-ID: B_P24319

Team Office Letting

Berlin Büro

+49 30 202993-0







    Wir verwenden Ihre Angaben zweckgebunden zur Bearbeitung Ihrer Anfrage. Weiter Informationen finden Sie in unsere Datenschutzerklärung.



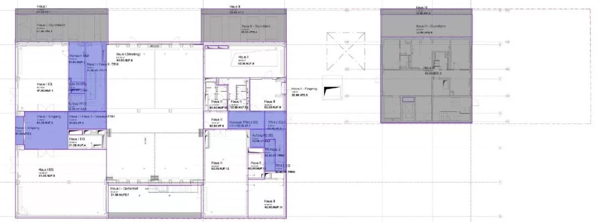
    Fläche
    1.533 m2
    Teilbar ab
    93 m2
    Mietpreis ab
    27,00 €/m2
    Verfügbar ab
    In Absprache mit dem Vermieter.
    • Neubauprojekt
    • 3 fünfgeschossige Häuser
    • flexible Grundrissgestaltung
    • klar gegliederte Fassade
    • ablesbare Tragstruktur
    • gefasste Fensteröffnungen
    • freie Lüftung über öffenbare Fenster
    • Verhaltung für optionale Kühlung
    • Wärmeschutzverglasung
    • außenliegender Sonnenschutz
    • moderne Ausstattung
    • getrennte Sanitärbereiche

    Energieausweis

    • Energieausweis liegt nicht vor

    Provision

    Die Anmietung dieser Flächen ist für den Mieter honorarfrei.

    Baujahr

    2021

    Ähnliche Objekte in der Nähe

    Team Office Letting

    Berlin Büro