CBD West

„Büro- und Geschäftshaus“

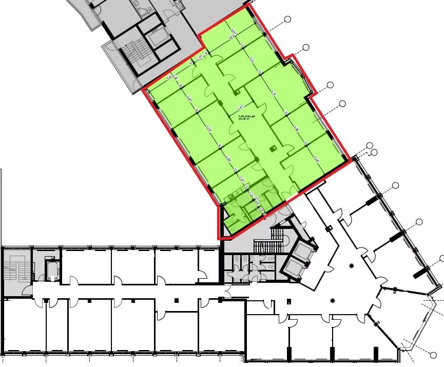
Büro | Zur Miete: 32,00 €/m2 | Objekt-ID: B_1/8702/G1

Team Office Letting

Berlin Büro

+49 30 202993-0







    Wir verwenden Ihre Angaben zweckgebunden zur Bearbeitung Ihrer Anfrage. Weiter Informationen finden Sie in unsere Datenschutzerklärung.



    Fläche
    1.601 m2
    Teilbar ab
    221 m2
    Mietpreis ab
    32,00 €/m2
    Verfügbar ab
    k.A.
    • Deckenbeleuchtung
    • CAT 5
    • Teppichboden
    • Kühldecke
    • Sonnenschutz außenliegend
    • Teeküche
    • Personenaufzug
    • öffenbare Fenster

    Energieausweis

    • Energieausweis liegt nicht vor

    Provision

    Die Anmietung dieser Flächen ist für den Mieter honorarfrei.

    Baujahr

    1997

    Ähnliche Objekte in der Nähe

    Team Office Letting

    Berlin Büro