Peripherie Süd

2 Bürohäuser am Wasser: „Tempelhof Twins“

Büro | Zur Miete: 14,50 €/m2 | Objekt-ID: B_1/8018/G2

Team Office Letting

Berlin Büro

+49 30 202993-0







    Wir verwenden Ihre Angaben zweckgebunden zur Bearbeitung Ihrer Anfrage. Weiter Informationen finden Sie in unsere Datenschutzerklärung.



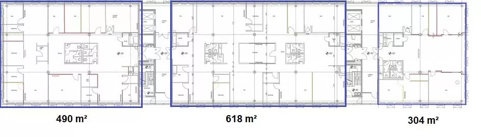
    Fläche
    9.739 m2
    Teilbar ab
    304 m2
    Mietpreis ab
    14,50 €/m2
    Verfügbar ab
    kurzfristig
    • bei dem Objekt "Tempelhof Twins" handelt es sich um ein repräsentatives Bürohausensemble, welches im Jahr 1996 errichtet wurde und aus zwei gläsernen Büroriegelbauten besteht
    • die 7-geschossigen Häuser verfügen jeweils über ca. 11.000 m² Mietfläche und teilweise Wasserblick
    • Glasfassade
    • Kantine mit Terrasse zum Wasser
    • der Zugang zu den modernen Büroflächen erfolgt über repräsentative Entrées mit Aufzügen
    • die lichtdurchfluteten Büroflächen verfügen teilweise über bodentiefe Fenster
    • Kühldecken
    • Teppichboden
    • Verkabelung über Hohlraumboden mit Bodentanks
    • Glasfaserverkabelung
    • Glassystemtrennwände
    • voll ausgestattete Teeküchen
    • Be- und Entlüftung
    • getrennte Sanitärbereiche
    • Spiegelrasterbeleuchtung
    • PKW-Stellplätze stehen zur Anmietung zur Verfügung

    Energieausweis

    • Energieausweistyp: Verbrauch
    • Gültig bis: 30.04.2020
    • Warmwasserbereitung nicht in den Kennzahlen enthalten

    Provision

    Die Anmietung dieser Flächen ist für den Mieter honorarfrei.

    Baujahr

    1996

    Ähnliche Objekte in der Nähe

    Team Office Letting

    Berlin Büro