City Rand Süd

„Bürohaus“

Büro | Zur Miete: 28,50 €/m2 | Objekt-ID: B_1/7805/G1

Team Office Letting

Berlin Büro

+49 30 202993-0







    Wir verwenden Ihre Angaben zweckgebunden zur Bearbeitung Ihrer Anfrage. Weiter Informationen finden Sie in unsere Datenschutzerklärung.



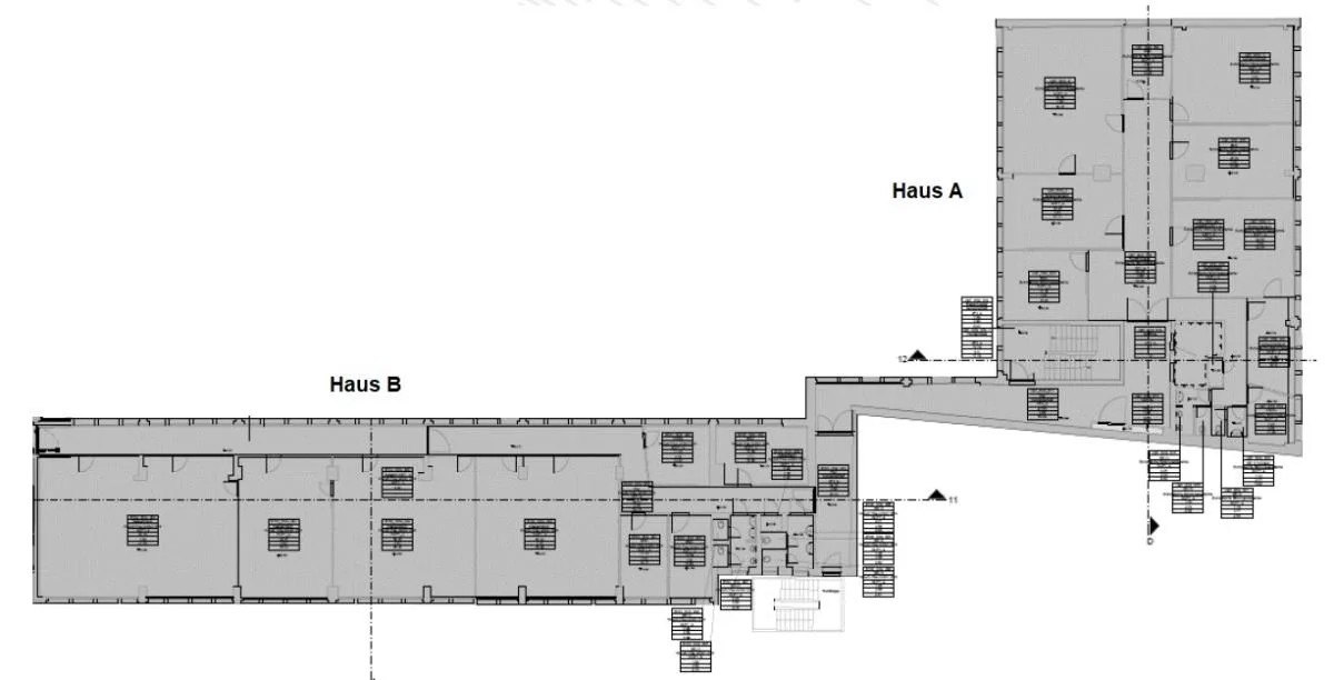
    Fläche
    691 m2
    Teilbar ab
    300 m2
    Mietpreis ab
    28,50 €/m2
    Verfügbar ab
    In Absprache mit dem Vermieter.
    • Außenliegender Sonnenschutz
    • Boden Teppich bzw. Parkett
    • EDV Verkabelung über Bodentanks oder uml . Brüstungskanäle
    • CAT 7 Verkabelung über Glasfaseranschluss
    • Bildschirmarbeitsgerechte blendfreie Beleuchtung
    • Hochwertige Sanitärbereiche
    • Teeküchen mit Spülmaschine und Kühlschrank
    • Effizienter Flächenzuschnitt
    • Flexible Grundrissgestaltung
    • Raumhöhe ca. 3,00 m bis 3,25 m
    • Aufzüge
    • Tiefgaragenstellplätze in der hauseigenen TG
    • Fahrradstellplätze

    Energieausweis

    • Energieausweis liegt nicht vor

    Provision

    Die Anmietung dieser Flächen ist für den Mieter honorarfrei.

    Baujahr

    1970

    Ähnliche Objekte in der Nähe

    Team Office Letting

    Berlin Büro