City West

„Büro-, Wohn- und Geschäftshaus“

Büro | Zur Miete: 25,00 €/m2 | Objekt-ID: B_1/7711/G1

Team Office Letting

Berlin Büro

+49 30 202993-0







    Wir verwenden Ihre Angaben zweckgebunden zur Bearbeitung Ihrer Anfrage. Weiter Informationen finden Sie in unsere Datenschutzerklärung.



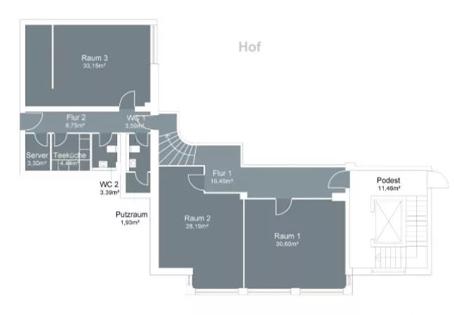
    Fläche
    140 m2
    Teilbar ab
    140 m2
    Mietpreis ab
    25,00 €/m2
    Verfügbar ab
    In Absprache mit dem Vermieter.
    • Büro-, Wohn- und Geschäftshaus 1995 errichtet
    • Neubau in Ecklage mit hochwertiger Natursteinfassade
    • funktionale Büroflächen, flexibel in Einzel-, Kombi- und Großraumbüros
    • weitere Ausstattungsoptionen individuell gestaltbar
    • Bodenbeläge nach Absprache
    • Bodentanks für eine strukturierte Verkabelung
    • getrennte Sanitärbereiche
    • Teeküche
    • PKW-Stellplätze stehen in der Tiefgarage und im Hof zur Anmietung zur Verfügung

    Energieausweis

    • Energieausweistyp: Bedarf

    Provision

    Die Anmietung dieser Flächen ist für den Mieter honorarpflichtig. Bei Abschluss eines rechtsgültigen Mietvertrages ist vom Mieter nachfolgend genanntes Maklerhonorar zzgl. der gesetzlich geltenden Umsatzsteuer an die Colliers International Deutschland GmbH fällig und zahlbar: bei einer Laufzeit bis 35 Monate 2,0 Monatskaltmieten bei einer Laufzeit ab 36 bis 59 Monate 2,5 Monatskaltmieten bei einer Laufzeit ab 60 bis 119 Monate 3,0 Monatskaltmieten bei einer Laufzeit ab 120 Monate 4,0 Monatskaltmieten

    Baujahr

    1995

    Ähnliche Objekte in der Nähe

    Team Office Letting

    Berlin Büro