City Ost

„Rosenhöfe“

Büro | Zur Miete: 40,00 €/m2 | Objekt-ID: B_1/2888/G1

Team Office Letting

Berlin Büro

+49 30 202993-0







    Wir verwenden Ihre Angaben zweckgebunden zur Bearbeitung Ihrer Anfrage. Weiter Informationen finden Sie in unsere Datenschutzerklärung.



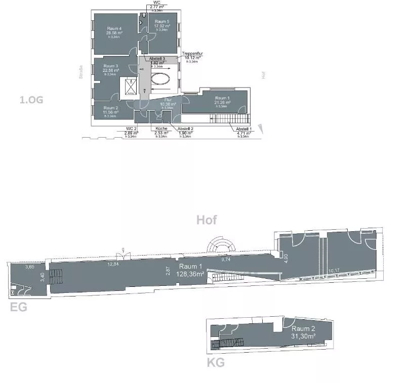
    Fläche
    300 m2
    Teilbar ab
    150 m2
    Mietpreis ab
    40,00 €/m2
    Verfügbar ab
    In Absprache mit dem Vermieter.
    • ein Altbau mit kunsthistorischer Bedeutung, der unter Denkmalschutz steht
    • zu den "Rosenhöfen" gelangt man sowohl von der Rosenthaler Straße als auch von der Sophienstraße aus
    • Ladenpassage über mehrere Ebenen mit filigraner Architektur
    • namhafte Mieter haben sich hier niedergelassen
    • repräsentative Büroflächen mit einer extravaganten Ausstattung
    • hochwertige Beleuchtung
    • getrennte Sanitäreinrichtungen
    • CAT 7 Verkabelung
    • Teppichboden
    • Laminatboden
    • Teeküche
    • Sonnenschutz innenliegend
    • öffenbare Fenster

    Energieausweis

    • Energieausweis liegt nicht vor

    Provision

    Die Anmietung dieser Flächen ist für den Mieter provisionspflichtig. Bei Abschluss eines rechtsgültigen Mietvertrages ist vom Mieter nachfolgend genannte Provision zzgl. der gesetzlich geltenden Mehrwertsteuer an die Colliers International Berlin GmbH fällig und zahlbar: bei einer Laufzeit bis 35 Monate 2,0 Monatskaltmieten bei einer Laufzeit ab 36 bis 59 Monate 2,5 Monatskaltmieten bei einer Laufzeit ab 60 bis 119 Monate 3,0 Monatskaltmieten bei einer Laufzeit ab 120 Monate 4,0 Monatskaltmieten

    Baujahr

    1910

    Ähnliche Objekte in der Nähe

    Team Office Letting

    Berlin Büro