Berlin

„Focus Teleport“

Büro | Zur Miete: 25,50 €/m2 | Objekt-ID: B_1/2853/G2

Team Office Letting

Berlin Büro

+49 30 202993-0







    Wir verwenden Ihre Angaben zweckgebunden zur Bearbeitung Ihrer Anfrage. Weiter Informationen finden Sie in unsere Datenschutzerklärung.



    Fläche
    3.954 m2
    Teilbar ab
    233 m2
    Mietpreis ab
    25,50 €/m2
    Verfügbar ab
    In Absprache mit dem Vermieter.
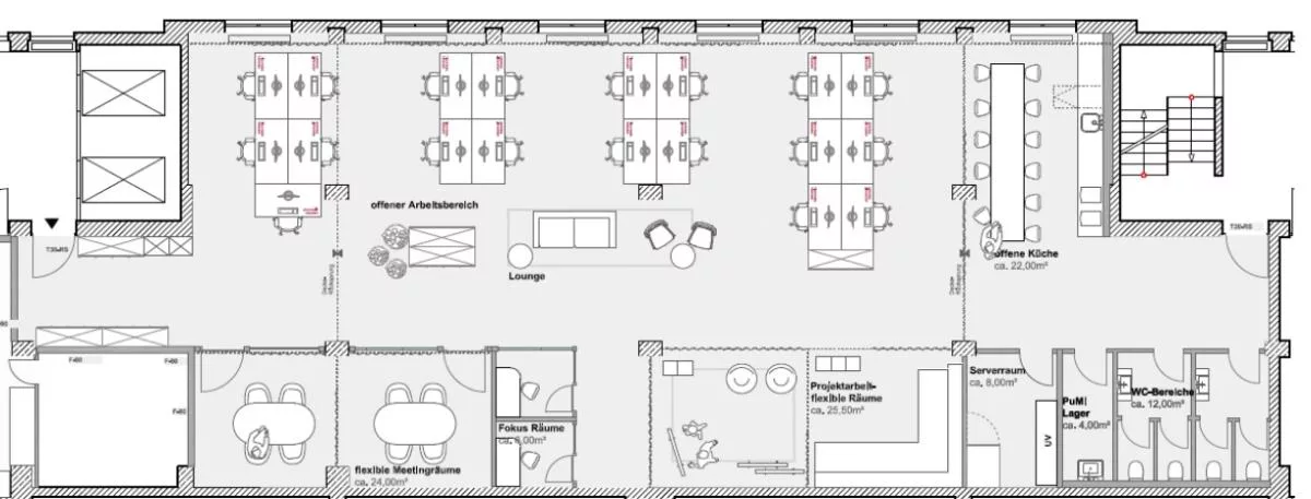
    • Büropark 'FOCUS Teleport' mit mehreren 4- bis 7-geschossigen Gebäuden
    • Vier-Sterne-Hotel mit Konferenzräumen auf dem Areal
    • Aufzüge, teilweise Lastenaufzüge
    • flexible Grundrissgestaltung
    • abgehängte Decken mit integrierter Beleuchtung
    • Hohlraumboden mit Bodentanks
    • Teppichboden
    • teilweise außenliegender Sonnenschutz
    • Teeküchen
    • getrennte Sanitärbereiche
    • PKW-Stellplätze stehen auf dem Gelände und im Parkhaus zur Anmietung verfügbar
    • Keller- und Archivflächen ebenfalls zur Anmietung verfügbar
    • 30.11.2022:
    • Deckenhöhe: 3,30 m
    • bodentiefe Fenster
    • CAT 7, Glasfaseranschluss
    • Lastenaufzug mit Rampe
    • DGNB Gold Zertifizierung angestrebt

    Energieausweis

    • Energieausweis liegt nicht vor

    Provision

    Die Anmietung dieser Flächen ist für den Mieter honorarfrei.

    Baujahr

    1992

    Ähnliche Objekte in der Nähe

    Team Office Letting

    Berlin Büro