Peripherie Nord

Erlenhöfe

Büro | Zur Miete: 17,00 €/m2 | Objekt-ID: B_1/2082/G2

Team Office Letting

Berlin Büro

+49 30 202993-0







    Wir verwenden Ihre Angaben zweckgebunden zur Bearbeitung Ihrer Anfrage. Weiter Informationen finden Sie in unsere Datenschutzerklärung.



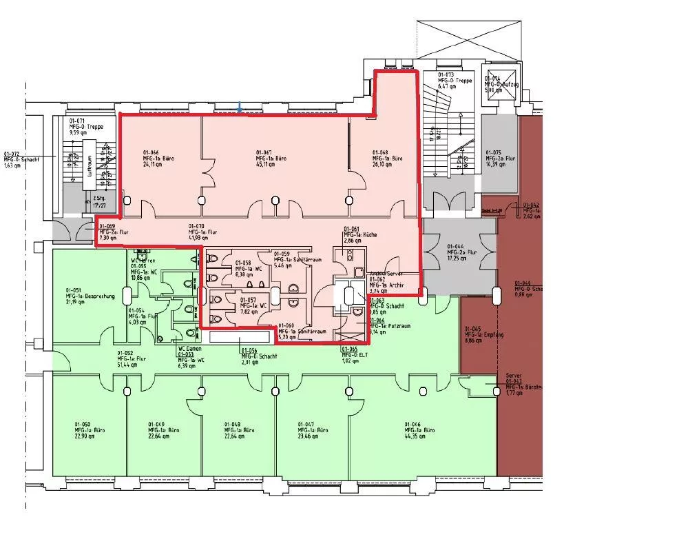
    Fläche
    3.728 m2
    Teilbar ab
    179 m2
    Mietpreis ab
    17,00 €/m2
    Verfügbar ab
    In Absprache mit dem Vermieter.
    • Baujahr:1910
    • letzte Sanierung: 1998
    • modernes Büro- und Dienstleistungszentrum, bestehend aus vier Neubauten mit Glas-Stahl-Fassade und zwei sanierten Bestandsaltbauten mit denkmalgeschützter Backsteinfassade
    • attraktiver begrünter Innenhof im Zentrum der Gebäude
    • zum Objekt gehören u.a. ein Hotel, Restaurants, ein Verbrauchermarkt und ein Fitnesscenter
    • durch Aufteilungsraster der Büroflächen äußerst flexible Nutzbarkeit
    • Deckenbeleuchtung
    • Glaserfaseranschluss, CAT 6, CAT 7, Verkabelung über Doppelboden
    • Teppichboden
    • Kühlung, Belüftungssystem
    • Deckenhöhe: 3 m
    • Sonnenschutz innenliegend
    • Teeküche
    • Personenaufzug
    • Zugangskontrolle auf Anfrage
    • flexible Grundrissgestaltung
    • Konferenzzentrum
    • PKW-Stellplätze auf dem Gelände und in der Tiefgarage zur Anmietung verfügbar

    Energieausweis

    • Energieausweistyp: Verbrauch
    • Warmwasserbereitung nicht in den Kennzahlen enthalten

    Provision

    Die Anmietung dieser Flächen ist für den Mieter honorarfrei.

    Baujahr

    1910

    Ähnliche Objekte in der Nähe

    Team Office Letting

    Berlin Büro