München

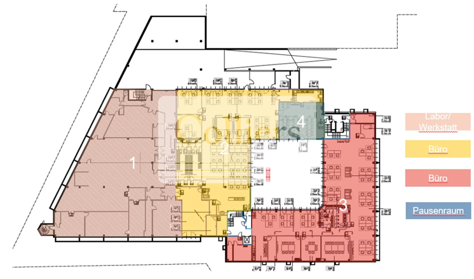
Moderne Labor- und Büroflächen mit hervorragender Anbindung

Industrie/Logistik | Objekt-ID: EXT-002727

Joelle Bühler

+49 151 67140411







    Wir verwenden Ihre Angaben zweckgebunden zur Bearbeitung Ihrer Anfrage. Weiter Informationen finden Sie in unsere Datenschutzerklärung.



    Fläche
    2.500 m2
    Mietpreis ab
    auf Anfrage
    Verfügbar ab
    Nach Vereinbarung
    • Modernisierte Flächen für vielseitige Nutzung in repräsentativem Gebäude mit Spiegelglas-Metallfassade
    • Separate Andienung über Rampe im Außenbereich möglich
    • Labore: Deionisiertes Wasser, hohe Stromleistung, Druckluft sowie Zu-/Abluft vorhanden, 2 Kompressoren, teilweise ESD-Boden, 50 % der Laborflächen wurden im Zeitraum 2022–2025 modernisiert und befinden sich in sehr gutem Zustand
    • Büroflächen und Sozialräume (WC, Pausen- und Aufenthaltsbereiche) 2024 umfassend saniert und befinden sich in einem hochwertigen, modernen Zustand
    • Alle Teeküchen vollständig erneuert und mit einer zeitgemäßen, gehobenen Ausstattung versehen
    • Großzügige Untergeschossbereich - zuletzt als Technikum genutzt - bietet flexible Nutzungsmöglichkeiten, ideal geeignet als Büro-, Technik- oder Lagerflächen
    • Raumhöhen: EG 3,50 m, UG 4,20 m
    • Fensterlüftung / Klimasplitgeräte sowie konditionierte Lüftungsanlage im UG
    • Brandmeldeanlage
    • Angeschlossenes Parkdeck
    • Zahlreiche Außenstellplätze stehen zur Verfügung
    • Sichtgeschützter Innenhof als besonderer Standortvorteil, nutzbar als attraktiver Pausen- und Aufenthaltsbereich, insbesondere in den Sommermonaten
    • Heizung: Gas-Heizung
    • UKB in m von 3,50 bis 4,20
    • Stromanschlüsse: Nein
    • Umfahrbarkeit: Nicht umfahrbar

    Energieausweis

    • Energieausweis: vorhanden

    Baujahr

    1991

    Sonstige Angaben

    Colliers International ist ein weltweit agierendes Unternehmen für Immobilien-Dienstleistungen mit mehr als 18.000 Experten, die aus mehr als 403 Büros in 68 Ländern tätig sind. Das Unternehmen bietet eine umfassende Palette von Dienstleistungen für Immobilien-Nutzer, Eigentümer und Investoren einschließlich: Corporate Solutions, Objektbewertung und -beratung, Projektentwicklungsberatung, Investment Services, Immobilien- und Asset-Management, Projektmanagement, Research und Prognosen.

    Ähnliche Objekte in der Nähe