Sülzetal

🚛 Moderne Logistikhalle direkt an der BAB14

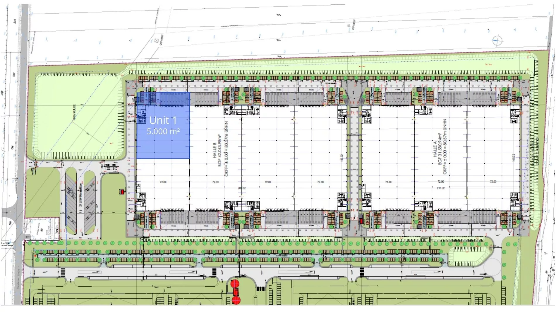
Industrie/Logistik | Objekt-ID: EXT-001761

Domenik Stamer

+49 341 2182990 29







    Wir verwenden Ihre Angaben zweckgebunden zur Bearbeitung Ihrer Anfrage. Weiter Informationen finden Sie in unsere Datenschutzerklärung.



    Fläche
    5.000 m2
    Teilbar ab
    5.000 m2
    Mietpreis ab
    auf Anfrage
    Verfügbar ab
    ab sofort

    Zur Vermietung steht eine hochwertige Logistikhalle, südwestlich von Magdeburg gelegen . Die Immobilie wurde 2023 errichtet und entspricht modernsten Anforderungen an Lager- und Logistikflächen. Die verfügbare Unit umfasst ca. 5.000 m² und ist ab sofort bezugsfrei. Die Andienung erfolgt flexibel über mehrere Rampentore sowie ein ebenerdiges Sektionaltor, was eine effiziente Be- und Entladung von Lkw und Transportfahrzeugen ermöglicht.

    • Betonboden
    • Heizung: Wärmepumpe
    • Beleuchtung: LED Beleuchtung
    • Brandmeldeanlage
    • Bodenbelastbarkeit 7,00 t/m²
    • ESFR-Sprinkler

    Energieausweis

    • Energieausweis: nicht erforderlich

    Baujahr

    2023

    Sonstige Angaben

    Colliers International ist ein weltweit agierendes Unternehmen für Immobilien-Dienstleistungen mit mehr als 18.000 Experten, die aus mehr als 403 Büros in 68 Ländern tätig sind. Das Unternehmen bietet eine umfassende Palette von Dienstleistungen für Immobilien-Nutzer, Eigentümer und Investoren einschließlich: Corporate Solutions, Objektbewertung und -beratung, Projektentwicklungsberatung, Investment Services, Immobilien- und Asset-Management, Projektmanagement, Research und Prognosen.

    Ähnliche Objekte in der Nähe