Sindelfingen

City Dock in Sindelfingen

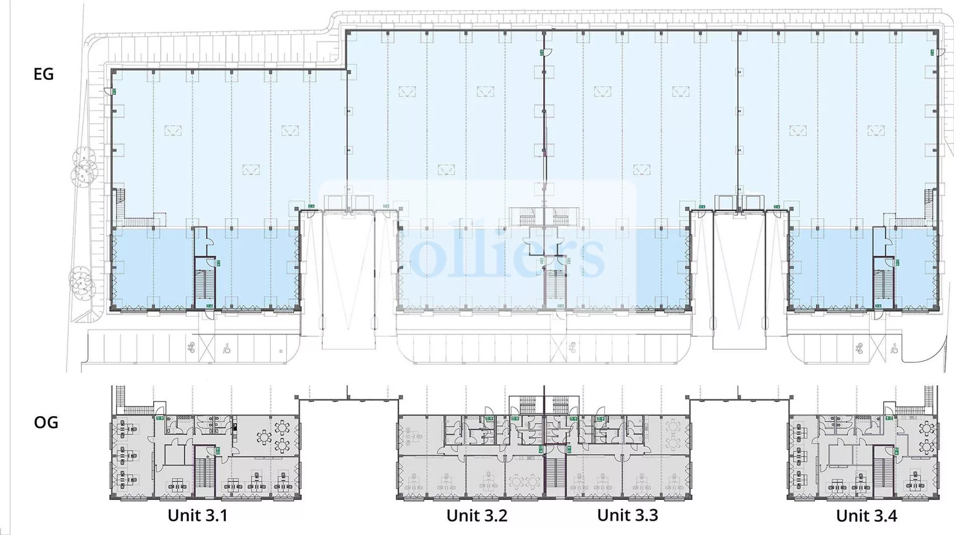
Industrie/Logistik | Zur Miete: 10,30 €/m2 | Objekt-ID: EXT-000730

Tobias Brehm

+49 711 227330







    Wir verwenden Ihre Angaben zweckgebunden zur Bearbeitung Ihrer Anfrage. Weiter Informationen finden Sie in unsere Datenschutzerklärung.



    Fläche
    6.525 m2
    Teilbar ab
    1.341 m2
    Mietpreis ab
    10,30 €/m2
    Verfügbar ab
    kurzfristig
    • Insgesamt 4 Units, teilbar je Unit:
    • Hallen- u. Industriefläche: 3.284 m², teilbar
    • Büro: 1.675 m², teilbar
    • Multifunktionsfläche: 1.567 m², teilbar
    • Variable Hallen- und Büroflächen
    • Individuelle Flächengestaltung
    • Modular erweiterbare Units
    • Flexible Flächenandienung
    • 1 Überladebrücke pro Unit
    • 1 ebenerdige Zufahrt pro Unit
    • Bodenbelastbarkeit: 5 t/m²
    • Vorrüstung für E-Mobilität
    • Energieeffiziente Bauweise
    • LED-Beleuchtung
    • Teeküchen vorhanden
    • Stützenraster: stützenfrei
    • Glasfaseranschluss
    • DGNB Gold Zertifizierung

    Energieausweis

    • Energieausweis: bei Besichtigung

    Baujahr

    2024

    Sonstige Angaben

    Dieses Objekt wird im Lead brokerage order von Colliers International Deutschland GmbH betreut. Colliers International ist ein weltweit agierendes Unternehmen für Immobilien-Dienstleistungen mit mehr als 18.000 Experten, die aus mehr als 403 Büros in 68 Ländern tätig sind. Das Unternehmen bietet eine umfassende Palette von Dienstleistungen für Immobilien-Nutzer, Eigentümer und Investoren einschließlich: Corporate Solutions, Objektbewertung und -beratung, Projektentwicklungsberatung, Investment Services, Immobilien- und Asset-Management, Projektmanagement, Research und Prognosen.

    Ähnliche Objekte in der Nähe