Wiesbaden

Büro-/Lagerkombination mit optimaler BAB-Anbindung

Büro | Zur Miete: 7,50 €/m2 | Objekt-ID: F_P8987

Ann Skrollan Persicke

+49 69 719192-0







    Wir verwenden Ihre Angaben zweckgebunden zur Bearbeitung Ihrer Anfrage. Weiter Informationen finden Sie in unsere Datenschutzerklärung.



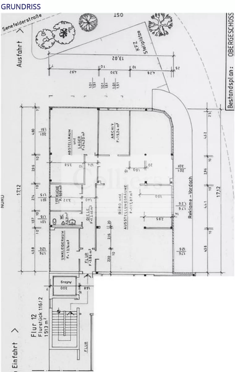
    Fläche
    394 m2
    Teilbar ab
    180 m2
    Mietpreis ab
    7,50 €/m2
    Verfügbar ab
    kurzfristig

    • Lastenaufzug mit ca. 750 kg Tragkraft
    • abgehängte OWA–Decke mit integr. Beleuchtung
    • heller PVC-Boden
    • flexible Raumaufteilung
    • Teeküche kann nach Absprache übernommen werden
    • zusätzlich ca. 140 m² Lagerfläche im UG zu je 3,50 EUR/m² mtl.

    Energieausweis

    • Energieausweis liegt nicht vor

    Provision

    Diese Liegenschaft können wir Ihnen provisionsfrei anbieten

    Baujahr

    1984

    Sonstige Angaben

    Im Außenbereich stehen 2 Pkw-Stellplätze mit einer Wallbox zu je 30,00 EUR mtl., sowie 1 Pkw-Stellplatz im Carport für 50,00 EUR mtl. zzgl. der gesetzlichen MwSt., für eine Anmietung zur Verfügung.

    Ähnliche Objekte in der Nähe

    Ann Skrollan Persicke