STR - Umland Süd

Jetzt Bürofläche sichern – bevor es andere tun!

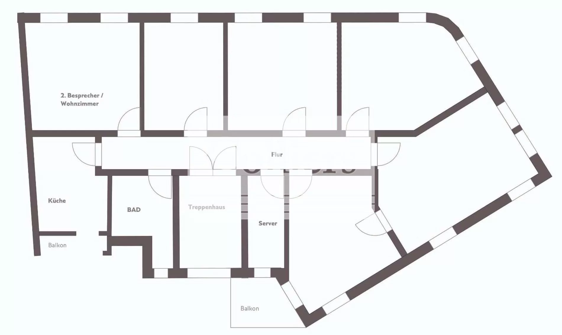
Büro | Zur Miete: 17,00 €/m2 | Objekt-ID: EXT-002300

Colliers International Deutschland GmbH

+49 711 22733 0







    Wir verwenden Ihre Angaben zweckgebunden zur Bearbeitung Ihrer Anfrage. Weiter Informationen finden Sie in unsere Datenschutzerklärung.



    Fläche
    174 m2
    Mietpreis ab
    17,00 €/m2
    Verfügbar ab
    nach Absprache

    Die Fläche wird im Untermietverhältnis für 3 Jahre angeboten, nach Absprache ist auch ein längerfristiges Mietverhältnis im Rahmen eines Hauptmietvertrages möglich. Der hier angebotene Mietpreis bezieht sich allerdings auf 3 Jahre. Die mtl. Miete erhöht sich jährlich zum 1.05 um 2,0%

    • hohe Decken mit Stuck

    Energieausweis

    • Energieausweis: bei Besichtigung

    Sonstige Angaben

    Colliers International ist ein weltweit agierendes Unternehmen für Immobilien-Dienstleistungen mit mehr als 18.000 Experten, die aus mehr als 403 Büros in 68 Ländern tätig sind. Das Unternehmen bietet eine umfassende Palette von Dienstleistungen für Immobilien-Nutzer, Eigentümer und Investoren einschließlich: Corporate Solutions, Objektbewertung und -beratung, Projektentwicklungsberatung, Investment Services, Immobilien- und Asset-Management, Projektmanagement, Research und Prognosen.

    Ähnliche Objekte in der Nähe

    Colliers International Deutschland GmbH