STR - Stuttgart Vaihingen Möhringen

Büroflächen mit Ausblick!

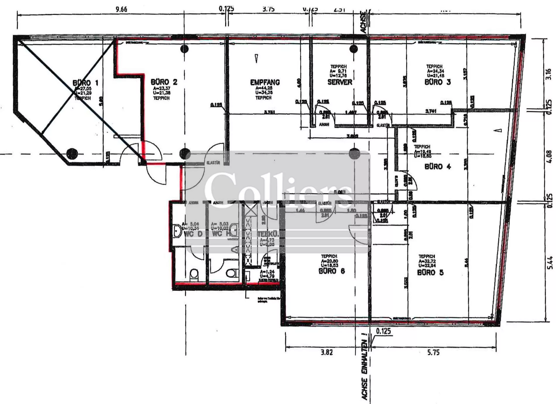
Büro | Zur Miete: 11,00 €/m2 | Objekt-ID: EXT-000536

Colliers International Deutschland GmbH

+49 711 22733 0







    Wir verwenden Ihre Angaben zweckgebunden zur Bearbeitung Ihrer Anfrage. Weiter Informationen finden Sie in unsere Datenschutzerklärung.



    Fläche
    195 m2
    Mietpreis ab
    11,00 €/m2
    Verfügbar ab
    kurzfristig

    • Aufzug vorhanden
    • Sonnenschutz: Sonnenschutz außen
    • Teeküchen: Teeküche(n) vorhanden
    • Verkabelung Büro: Brüstungskanäle, EDV-Verkabelung
    • Bodenbelag: Linoleum in Parkettoptik, teilweise Teppichboden
    • Es können auch einzelne Räume angemietet werden

    Energieausweis

    • Energieausweis: bei Besichtigung

    Sonstige Angaben

    Colliers International ist ein weltweit agierendes Unternehmen für Immobilien-Dienstleistungen mit mehr als 18.000 Experten, die aus mehr als 403 Büros in 68 Ländern tätig sind. Das Unternehmen bietet eine umfassende Palette von Dienstleistungen für Immobilien-Nutzer, Eigentümer und Investoren einschließlich: Corporate Solutions, Objektbewertung und -beratung, Projektentwicklungsberatung, Investment Services, Immobilien- und Asset-Management, Projektmanagement, Research und Prognosen.

    Ähnliche Objekte in der Nähe

    Colliers International Deutschland GmbH