STR - Stuttgart north

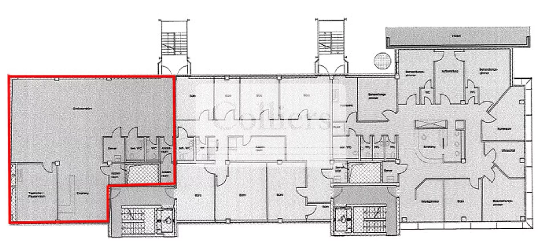
Flexibel gestaltbare Büroflächen

Büro | Zur Miete: 15,00 €/m2 | Objekt-ID: EXT-000166

Colliers International Deutschland GmbH

+49 711 22733 0







    Wir verwenden Ihre Angaben zweckgebunden zur Bearbeitung Ihrer Anfrage. Weiter Informationen finden Sie in unsere Datenschutzerklärung.



    Fläche
    555 m2
    Teilbar ab
    177 m2
    Mietpreis ab
    15,00 €/m2
    Verfügbar ab
    01.07.2024

    • Sonnenschutz: Sonnenschutz außen
    • Beleuchtung Büro: Pendelleuchten
    • Kühlung Büro: Klimaanlage
    • Teeküchen: Teeküche(n) vorhanden
    • Verkabelung Büro: CAT 7, Bodentanks, EDV-Verkabelung
    • Aufzug
    • Die Nebenkosten beinhalten bereits die Kosten für die Kühlung

    Energieausweis

    • Energieausweis: vorhanden

    Sonstige Angaben

    Colliers International ist ein weltweit agierendes Unternehmen für Immobilien-Dienstleistungen mit mehr als 18.000 Experten, die aus mehr als 403 Büros in 68 Ländern tätig sind. Das Unternehmen bietet eine umfassende Palette von Dienstleistungen für Immobilien-Nutzer, Eigentümer und Investoren einschließlich: Corporate Solutions, Objektbewertung und -beratung, Projektentwicklungsberatung, Investment Services, Immobilien- und Asset-Management, Projektmanagement, Research und Prognosen.

    Ähnliche Objekte in der Nähe

    Colliers International Deutschland GmbH