N-Stadt Ost

Erlenstegen – Bürofläche in beliebter Lage

Büro | Zur Miete: 12,00 €/m2 | Objekt-ID: N_P3099

Anke Stamminger

Nürnberg Büro

+49 170 6586629







    Wir verwenden Ihre Angaben zweckgebunden zur Bearbeitung Ihrer Anfrage. Weiter Informationen finden Sie in unsere Datenschutzerklärung.



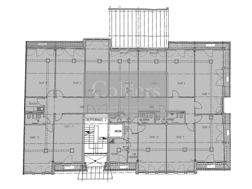
    Fläche
    364 m2
    Teilbar ab
    364 m2
    Mietpreis ab
    12,00 €/m2
    Verfügbar ab
    Kurzfristig
    • Markante Architektur
    • Repräsentativer Eingangsbereich
    • Abgehängte Decken
    • Kühlung kann nachgerüstet werden
    • Änderungswünsche nach Mieterwunsch möglich
    • Gewerbesteuerhebesatz: 467 %
    • Bodentanks, CAT-7-Verkabelung
    • Außenliegender elektrischer Sonnenschutz, Innenliegender Blendschutz
    • Fensterlüftung
    • Personenlift(e) vorhanden

    Energieausweis

    • Energieausweistyp: Verbrauch
    • Gültig bis: 26.10.2024

    Provision

    Honorarpflichtig für den Mieter

    Baujahr

    2001

    Ähnliche Objekte in der Nähe

    Anke Stamminger

    Nürnberg Büro