NUE - Altstadt

Wöhrd – Bürofläche mit Galerie im historischen Gebäude

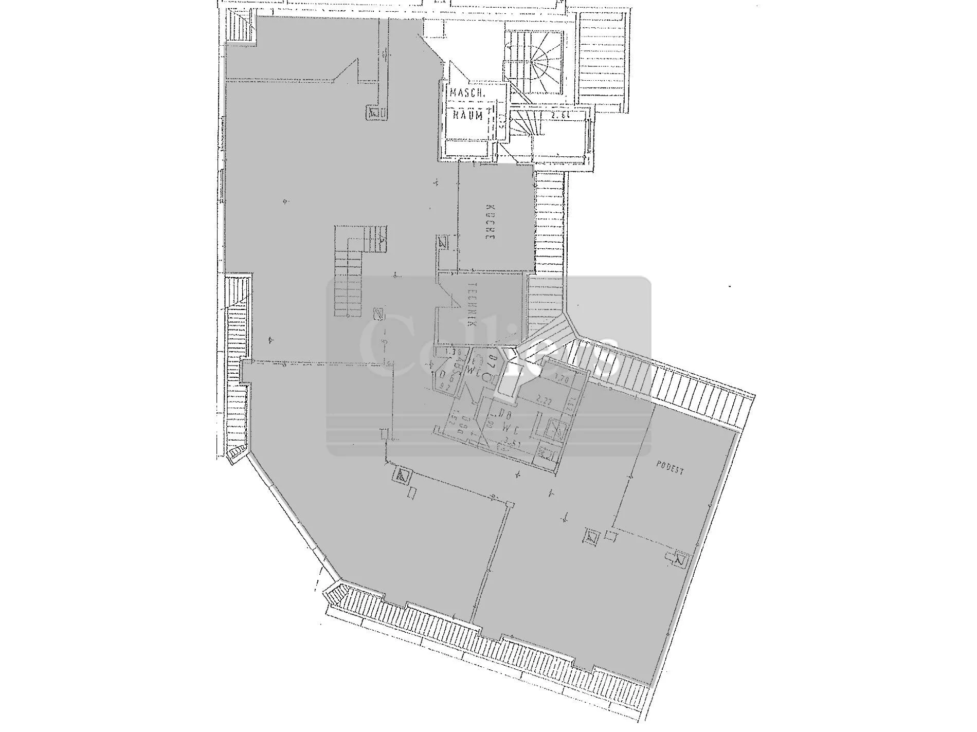
Büro | Zur Miete: 5,75 €/m2 | Objekt-ID: EXT-000833

Gina Calabrese

+49 151 53839954







    Wir verwenden Ihre Angaben zweckgebunden zur Bearbeitung Ihrer Anfrage. Weiter Informationen finden Sie in unsere Datenschutzerklärung.



    Fläche
    715 m2
    Teilbar ab
    315 m2
    Mietpreis ab
    5,75 €/m2
    Verfügbar ab
    Siehe Flächenaufstellung
    • Kühlung kann auf Mieterwunsch nachgerüstet werden (Kostenpunkt: 0,60 €/m²/mtl)
    • Zwei Zugangsmöglichkeiten / Fluchtwege vorhanden
    • Dachgeschoss und Galeriefläche sind über eine interne Treppe verbunden
    • Aufzug über wenige Treppenstufen erreichbar
    • Fenster: Doppelverglasung
    • Sonnenschutz: Sonnen-/Blendschutz nicht vorhanden
    • Zugangssystem: Kamera-/Videoüberwachung, Kontaktloser Zugang
    • Beleuchtung Büro: Aufputzleuchten, Einbauleuchten
    • Bodenbelag Büro: Laminatboden, Parkettboden
    • Kühlung Büro: Fensterlüftung
    • Teeküchen: Teeküche(n) vorhanden
    • Verkabelung Büro: Verkabelung nach Vereinbarung, Kabelkanäle
    • Wandaufbau: Trennwände aus Gipskarton/Glaskombination
    • Lichte Büro Raumhöhe in m von 2.52 bis 5.81

    Energieausweis

    • Energieausweis: nicht erforderlich

    Sonstige Angaben

    Colliers International ist ein weltweit agierendes Unternehmen für Immobilien-Dienstleistungen mit mehr als 18.000 Experten, die aus mehr als 403 Büros in 68 Ländern tätig sind. Das Unternehmen bietet eine umfassende Palette von Dienstleistungen für Immobilien-Nutzer, Eigentümer und Investoren einschließlich: Corporate Solutions, Objektbewertung und -beratung, Projektentwicklungsberatung, Investment Services, Immobilien- und Asset-Management, Projektmanagement, Research und Prognosen.

    Ähnliche Objekte in der Nähe