NUE - Innenstadtgürtel Süd

Gostenhof – Ihr neuen Büroflächen in Zentrumsnähe

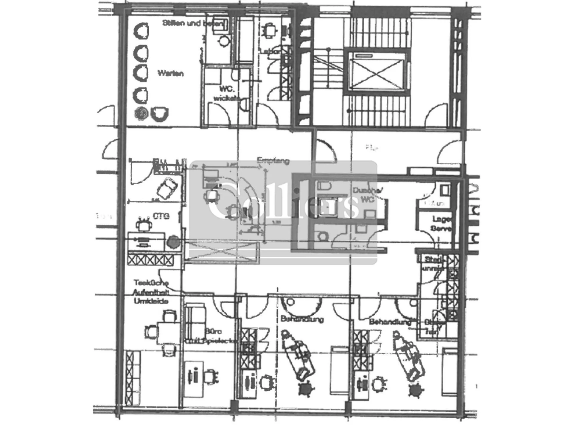
Büro | Zur Miete: 10,00 €/m2 | Objekt-ID: EXT-002063

Luis Zechmeister

+49 151 53839966







    Wir verwenden Ihre Angaben zweckgebunden zur Bearbeitung Ihrer Anfrage. Weiter Informationen finden Sie in unsere Datenschutzerklärung.



    Fläche
    196 m2
    Mietpreis ab
    10,00 €/m2
    Verfügbar ab
    k.A.

    • Fenster: Doppelverglasung, Öffenbare Fenster
    • Sonnenschutz: Sonnen-/Blendschutz nach Vereinbarung
    • Sonstige Ausstattungsmerkmale: Dusche
    • Zugangssystem: Schließsystem mechanisch
    • Belüftung Büro: Fensterlüftung

    Energieausweis

    • Energieausweis: bei Besichtigung

    Sonstige Angaben

    Dieses Objekt wird im Leadmakler-Auftrag von Colliers International Deutschland GmbH betreut. Colliers International ist ein weltweit agierendes Unternehmen für Immobilien-Dienstleistungen mit mehr als 18.000 Experten, die aus mehr als 403 Büros in 68 Ländern tätig sind. Das Unternehmen bietet eine umfassende Palette von Dienstleistungen für Immobilien-Nutzer, Eigentümer und Investoren einschließlich: Corporate Solutions, Objektbewertung und -beratung, Projektentwicklungsberatung, Investment Services, Immobilien- und Asset-Management, Projektmanagement, Research und Prognosen.

    Ähnliche Objekte in der Nähe