Köln Sülz / Lindenthal / Klettenberg

Gepflegte Bürofläche in zentraler Lage von Lindenthal!

Büro | Zur Miete: 16,00 €/m2 | Objekt-ID: D_P5987

Köln Bürovermietung

Köln Büro

+49 221-986 537 0







    Wir verwenden Ihre Angaben zweckgebunden zur Bearbeitung Ihrer Anfrage. Weiter Informationen finden Sie in unsere Datenschutzerklärung.



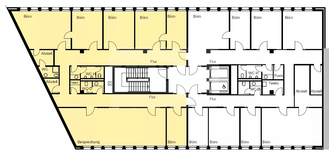
    Fläche
    279 m2
    Mietpreis ab
    16,00 €/m2
    Verfügbar ab
    Q1 2026

    Zu den Nebenkosten fällt eine Verwaltungskostenpauschale in Höhe von 3 % der Nettomiete an.

    • Raumhöhe: 2,60 - 3,00 m
    • Raumtiefe: bis 5,00 m
    • Tiefgarage: vorhanden
    • Personenaufzug: 2 Stück vorhanden
    • BAP-Beleuchtung
    • Hohlraumboden
    • Pendelleuchten
    • Sonnenschutz
    • Teeküche
    • KAT-7-Verkabelung
    • Teppichboden
    • abgehängte Decken
    • Rigipswände

    Energieausweis

    • Energieausweis liegt nicht vor

    Provision

    Eine Anmietung ist honorarfrei für den Mieter.

    Ähnliche Objekte in der Nähe

    Köln Bürovermietung

    Köln Büro