Köln City

Helle Bürofläche in Kölns Top-Lage

Büro | Zur Miete: 16,90 €/m2 | Objekt-ID: D_P11141

Köln Bürovermietung

Köln Büro

+49 221-986 537 0







    Wir verwenden Ihre Angaben zweckgebunden zur Bearbeitung Ihrer Anfrage. Weiter Informationen finden Sie in unsere Datenschutzerklärung.



    Fläche
    167 m2
    Teilbar ab
    167 m2
    Mietpreis ab
    16,90 €/m2
    Verfügbar ab
    kurzfristig

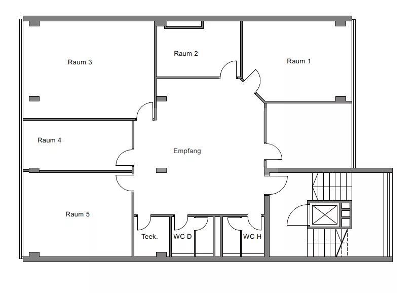
    • Über das helle Treppenhaus oder den Aufzug erreichen Sie die rund 167m² große Bürofläche im 4. Obergeschoss. Die Einheit ist in zwei kleinere Büros, einen Konferenzraum sowie zwei großzügige Büroräume aufgeteilt. Zusätzlich stehen zwei getrennte WC Einheiten sowie eine separate Teeküche zur Verfügung.
    • Die Ausstattung und Raumaufteilung können, unter Berücksichtigung des Gesamtpakets, an Ihre individuellen Anforderungen angepasst werden. In der hauseigenen Tiefgarage besteht zudem die Möglichkeit, zusätzliche Stellplätze anzumieten. Von dort gelangen Sie ebenfalls bequem per Aufzug direkt auf Ihre Etage.

    Energieausweis

    • Energieausweistyp: Bedarf
    • Gültig bis: 25.11.2029

    Provision

    Diese Liegenschaft können wir Ihnen honorarfrei anbieten.

    Baujahr

    1972

    Ähnliche Objekte in der Nähe

    Köln Bürovermietung

    Köln Büro