HAM - City

Büro im historischen Streit’s Hof!

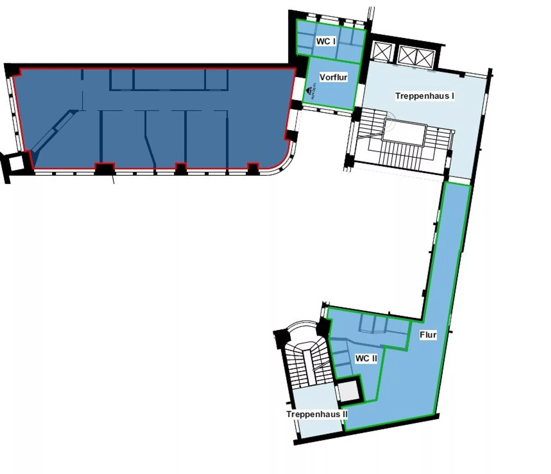
Büro | Zur Miete: 22,50 €/m2 | Objekt-ID: EXT-002335

Julia Schlegel

+49 160 4816679







    Wir verwenden Ihre Angaben zweckgebunden zur Bearbeitung Ihrer Anfrage. Weiter Informationen finden Sie in unsere Datenschutzerklärung.



    Fläche
    177 m2
    Teilbar ab
    177 m2
    Mietpreis ab
    22,50 €/m2
    Verfügbar ab
    k.A.

    • Fenster: Öffenbare Fenster
    • Sonnenschutz: Sonnenschutz innen
    • Kühlung Büro: Keine Kühlung
    • Verkabelung Büro: CAT 5, Kabelkanäle
    • Zertifizierung: Keine Zertifizierung

    Energieausweis

    • Energieausweis: nicht erforderlich

    Provision

    Gemäß unserer AGB.

    Baujahr

    1909

    Sonstige Angaben

    Colliers International ist ein weltweit agierendes Unternehmen für Immobilien-Dienstleistungen mit mehr als 18.000 Experten, die aus mehr als 403 Büros in 68 Ländern tätig sind. Das Unternehmen bietet eine umfassende Palette von Dienstleistungen für Immobilien-Nutzer, Eigentümer und Investoren einschließlich: Corporate Solutions, Objektbewertung und -beratung, Projektentwicklungsberatung, Investment Services, Immobilien- und Asset-Management, Projektmanagement, Research und Prognosen.

    Ähnliche Objekte in der Nähe