MUC - Umland Süd-Ost

Taufkirchen – Direkt an der S-Bahn-Station

Büro | Zur Miete: 9,50 €/m2 | Objekt-ID: EXT-001092

Stefanie Mitterneder

+49 89 624294 57







    Wir verwenden Ihre Angaben zweckgebunden zur Bearbeitung Ihrer Anfrage. Weiter Informationen finden Sie in unsere Datenschutzerklärung.



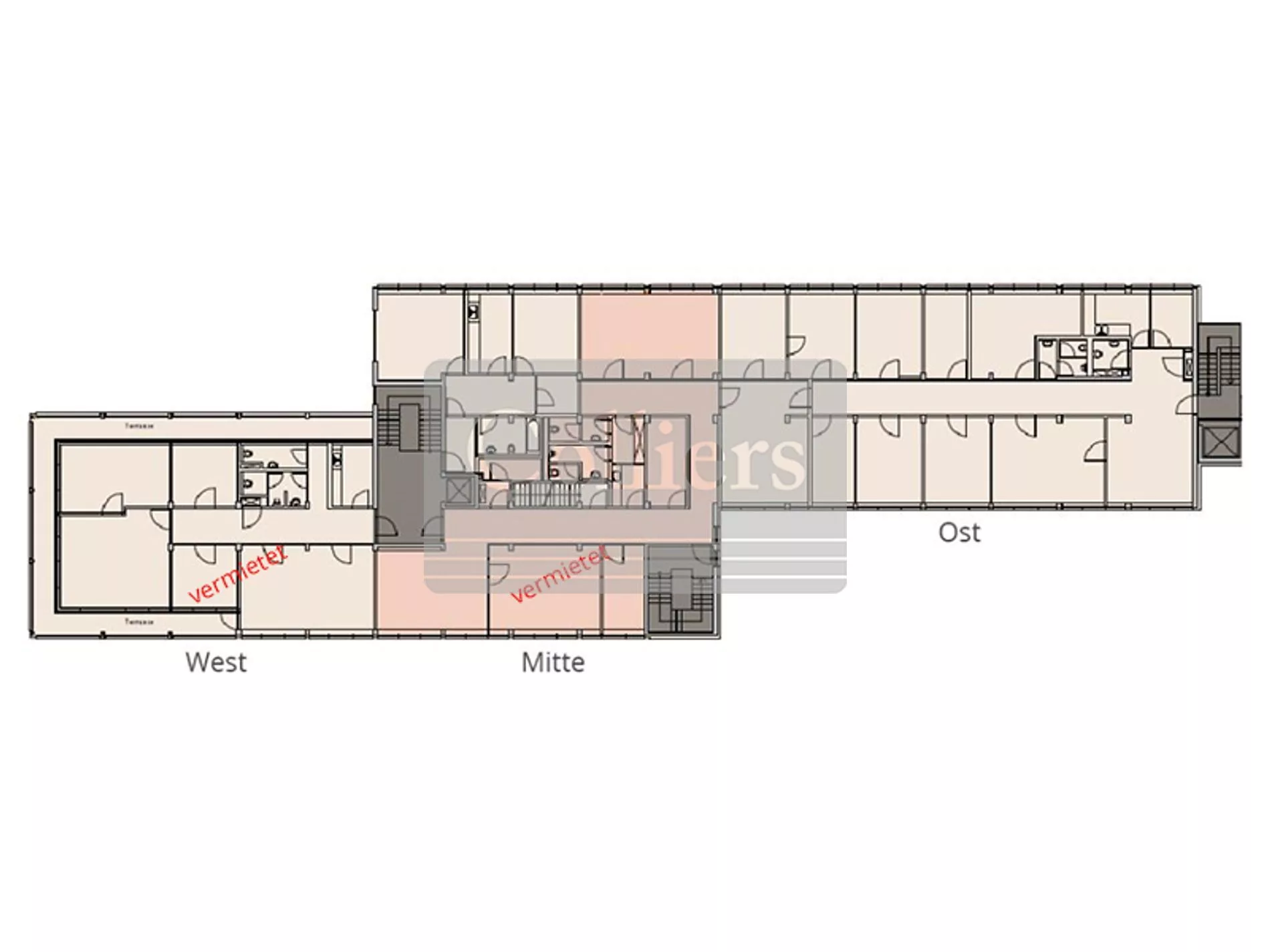
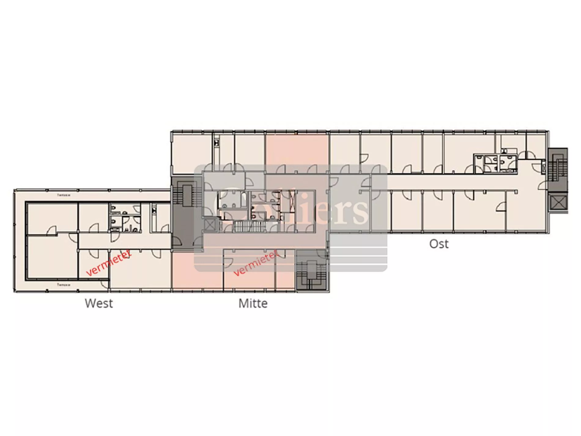
    Fläche
    1.891 m2
    Teilbar ab
    123 m2
    Mietpreis ab
    9,50 €/m2
    Verfügbar ab
    Kurzfristig
    • Helle Büro- und Ladenflächen in der Eschenpassage in Taufkirchen
    • Mietvertragslaufzeit bis 31.12.2028
    • Mietpreis varriert je Einheit zwischen ab 9,50 €/m² - ab 19,55 €/m²
    • Fenster: Öffenbare Fenster
    • Heizung: Fernwärme
    • Sonnenschutz: Sonnenschutz außen
    • Zugangssystem: Zugangskontrollsystem auf Anfrage
    • Beleuchtung Büro: Rasterleuchten
    • Bodenbelag Büro: Teppichboden, PVC- / Vinylboden
    • Kühlung Büro: Fensterlüftung
    • Teeküchen: Teeküche(n) auf Anfrage
    • Verkabelung Büro: Verkabelung mieterseitig, Fensterbankkabelkanal

    Energieausweis

    • Energieausweis: vorhanden

    Baujahr

    1980

    Sonstige Angaben

    Colliers International ist ein weltweit agierendes Unternehmen für Immobilien-Dienstleistungen mit mehr als 18.000 Experten, die aus mehr als 403 Büros in 68 Ländern tätig sind. Das Unternehmen bietet eine umfassende Palette von Dienstleistungen für Immobilien-Nutzer, Eigentümer und Investoren einschließlich: Corporate Solutions, Objektbewertung und -beratung, Projektentwicklungsberatung, Investment Services, Immobilien- und Asset-Management, Projektmanagement, Research und Prognosen.

    Stefanie Mitterneder