Waisenhausstraße 8, 01067 Dresden

✅ Top Qualität zu Top Preis!

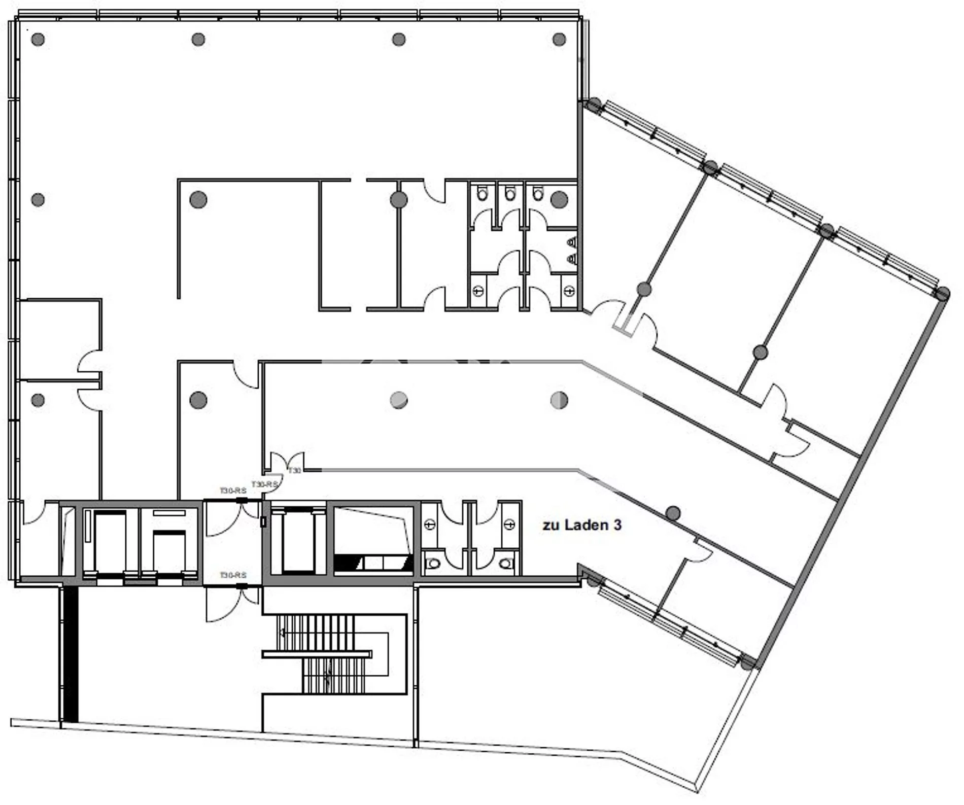
Büro | Zur Miete: 13,00 €/m2 | Objekt-ID: EXT-000970

Peggy Thoma

+49 151 12005754







    Wir verwenden Ihre Angaben zweckgebunden zur Bearbeitung Ihrer Anfrage. Weiter Informationen finden Sie in unsere Datenschutzerklärung.



    Fläche
    386 m2
    Mietpreis ab
    13,00 €/m2
    Verfügbar ab
    Nach Vereinbarung

    Das modern gestaltete Bürogebäude bietet die Möglichkeit, Einzel- oder Großraumbüros zu schaffen. Umfangreich und barrierefrei ausgestattet können Umbaumaßnahmen nach Mieterwunsch umgesetzt werden. Das Objekt verfügt über ein sehr repräsentatives Entrée.

    • tolle Arbeitsatmosphäre durch bodentiefe Fenster
    • repräsentatives Entreé
    • Klimatisierung
    • Bodenbelag nach Vereinbarung
    • Einbauleuchten
    • Teeküche
    • Glasfaser
    • Verkabelung über Hohlraumböden

    Energieausweis

    • Energieausweis: vorhanden

    Baujahr

    1998

    Sonstige Angaben

    Colliers International ist ein weltweit agierendes Unternehmen für Immobilien-Dienstleistungen mit mehr als 18.000 Experten, die aus mehr als 403 Büros in 68 Ländern tätig sind. Das Unternehmen bietet eine umfassende Palette von Dienstleistungen für Immobilien-Nutzer, Eigentümer und Investoren einschließlich: Corporate Solutions, Objektbewertung und -beratung, Projektentwicklungsberatung, Investment Services, Immobilien- und Asset-Management, Projektmanagement, Research und Prognosen.

    Ähnliche Objekte in der Nähe