Düsseldorf Nord

Optimale Anbindung|verkehrsberuhigt|optionale Kühlung|Tiefgarage

Büro | Zur Miete: 12,50 €/m2 | Objekt-ID: D_9900

Christoph Blümer

Düsseldorf Büro

+49 211 862062-72







    Wir verwenden Ihre Angaben zweckgebunden zur Bearbeitung Ihrer Anfrage. Weiter Informationen finden Sie in unsere Datenschutzerklärung.



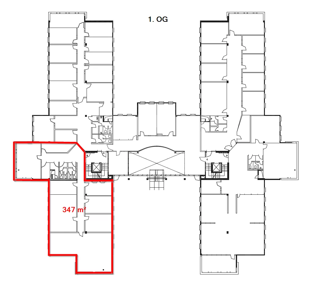
    Fläche
    1.335 m2
    Teilbar ab
    314 m2
    Mietpreis ab
    12,50 €/m2
    Verfügbar ab
    kurzfristig
    • Viergeschossiges Bürogebäude
    • Zwei Personenaufzüge
    • PKW-Stellplätze vor dem Objekt und in der Tiefgarage
    • Fahrradstellplätze
    • Foyer mit Aufenthaltsqualität
    • Begrünter Innenhof
    • Dachterrassen und Balkone
    • Hohlraumboden
    • Außenliegender Sonnenschutz
    • Kühlung nachrüstbar
    • Teeküche
    • Fensterachsmaß: ca. 1,35 m
    • Raumhöhe: ca. 2,85 - 3,00 m
    • Raumtiefe: ca. 5,80 m

    Energieausweis

    • Energieausweistyp: Verbrauch
    • Gültig bis: 05.09.2029

    Provision

    Eine Anmietung ist honorarfrei für den Mieter.

    Baujahr

    2003

    Ähnliche Objekte in der Nähe

    Christoph Blümer

    Düsseldorf Büro