Düsseldorf Kennedydamm

Hochmoderne Büroflächen im Kennedydamm

Büro | Zur Miete: 23,50 €/m2 | Objekt-ID: D_2160a

Marion Heinrichs

Düsseldorf Büro

+49 211 862062-0







    Wir verwenden Ihre Angaben zweckgebunden zur Bearbeitung Ihrer Anfrage. Weiter Informationen finden Sie in unsere Datenschutzerklärung.



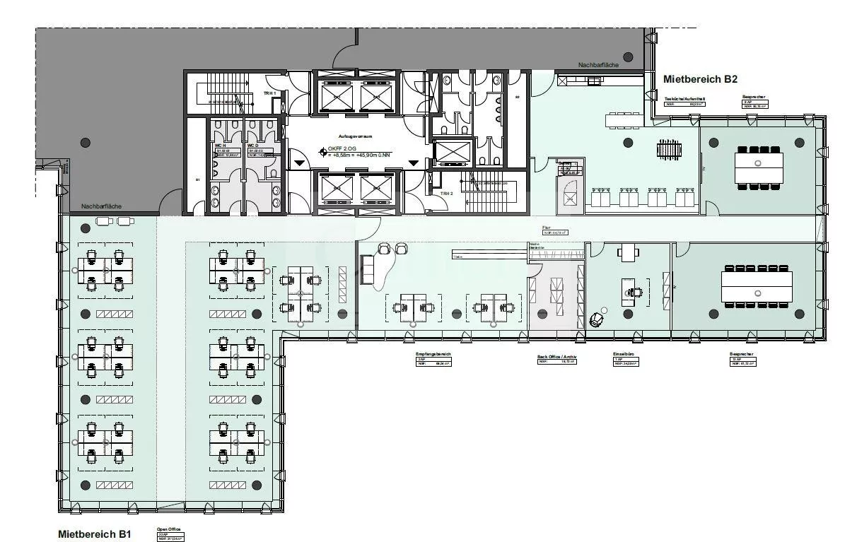
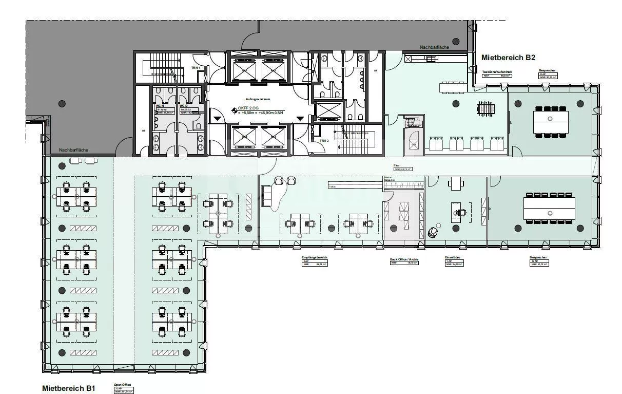
    Fläche
    1.540 m2
    Teilbar ab
    400 m2
    Mietpreis ab
    23,50 €/m2
    Verfügbar ab
    kurzfristig
    • DER BENNIGSEN-PLATZ "B1"
    • Durch die vollständige Sanierung und Aufstockung des 1974 fertiggestellten Verwaltungsgebäudes am Bennigsen-Platz 1 entstand bis 2009 das B1.
    • Der Bennigsenplatz 1 bietet den Mietern ein durchdachtes Gesamtkonzept mit höchstem Komfort: einen besetzten Empfang, moderne Bürowelten mit flexibel gestaltbaren Arbeitsplatzkonzepten, einer bereits vorhanden Kühlung der Mietflächen sowie angenehmen Raumhöhen mit viel Tageslicht.
    • https://b1-duesseldorf.de/
    • Stahlbeton Konstruktion
    • 4 Personenaufzüge & 1 Feuerwehraufzug
    • Klimatisierung durch Kühldecken
    • Heizung: Fernwärme
    • Lichte Raumhöhe: ca. 2,85 – 4,00 m
    • Raumtiefe: ca. 5,90 m
    • Stehleuchten
    • Glasfaseranschluss vorhanden
    • Kabelführung: Doppelboden
    • Sicherheit durch Zugangskontrolle
    • Besetzter Empfang
    • Öffenbare Fenster
    • Sonnenschutz außen

    Energieausweis

    • Energieausweistyp: Bedarf
    • Gültig bis: 20.02.2029

    Provision

    Eine Anmietung ist honorarfrei für den Mieter.

    Baujahr

    1974

    Ähnliche Objekte in der Nähe

    Marion Heinrichs

    Düsseldorf Büro