Berlin

P88

Büro | Zur Miete: 31,00 €/m2 | Objekt-ID: B_1/6716/G1

Team Office Letting

Berlin Büro

+49 30 202993-0







    Wir verwenden Ihre Angaben zweckgebunden zur Bearbeitung Ihrer Anfrage. Weiter Informationen finden Sie in unsere Datenschutzerklärung.



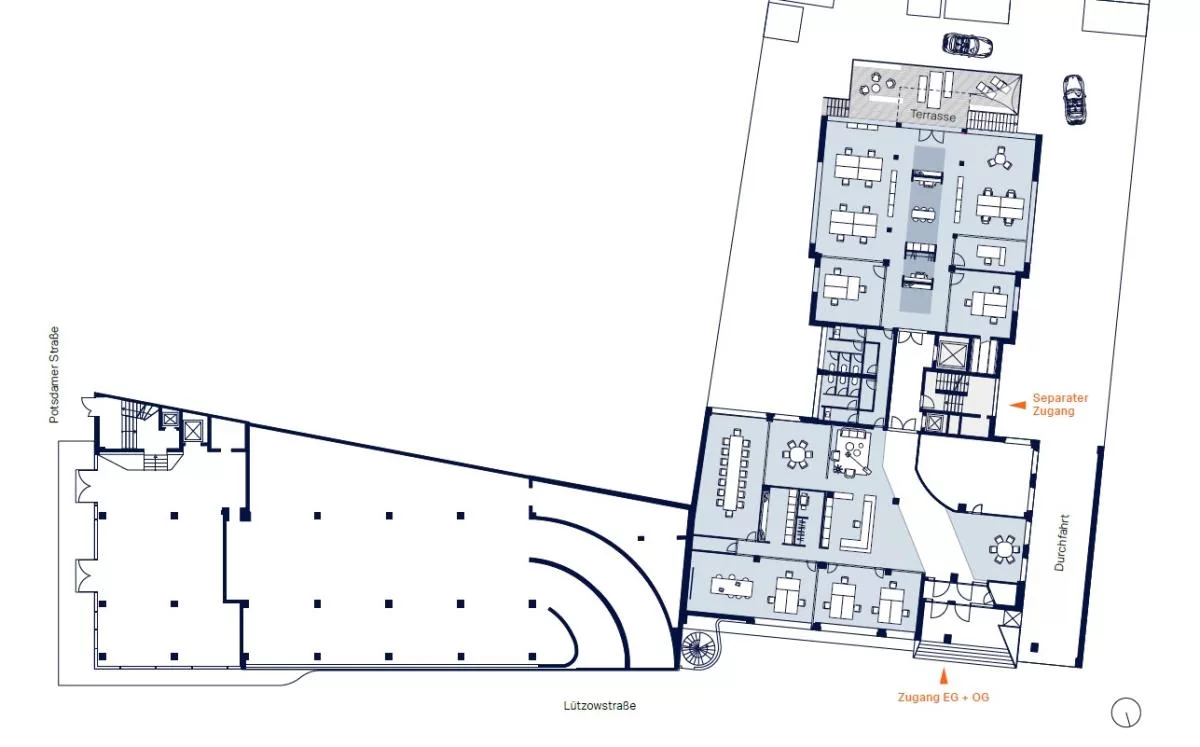
    Fläche
    2.416 m2
    Teilbar ab
    250 m2
    Mietpreis ab
    31,00 €/m2
    Verfügbar ab
    In Absprache mit dem Vermieter.
    • Deckenbeleuchtung
    • Glasfaseranschluss am Haus anliegend
    • Verkabelung mieterseitig
    • Bodenbelag nach Vereinbarung
    • Kühlung ab 1. OG vorhanden
    • Deckenhöhe: bis 4,00 m
    • Sonnenschutz innenliegend, elektrisch
    • Teeküche
    • Personenaufzug
    • öffenbare Fenster
    • Zugangskontrolle nach Vereinbarung
    • Mietpreis 28,00 - 31,00 EUR/m²

    Energieausweis

    • Energieausweis liegt nicht vor

    Provision

    Die Anmietung dieser Flächen ist für den Mieter honorarfrei.

    Baujahr

    1970

    Ähnliche Objekte in der Nähe

    Team Office Letting

    Berlin Büro