City Ost

Tuteur Haus – liebevoll sanierter Stilaltbau in 1A-Lage

Büro | Zur Miete: 29,50 €/m2 | Objekt-ID: B_1/2445/G1

Team Office Letting

Berlin Büro

+49 30 202993-0







    Wir verwenden Ihre Angaben zweckgebunden zur Bearbeitung Ihrer Anfrage. Weiter Informationen finden Sie in unsere Datenschutzerklärung.



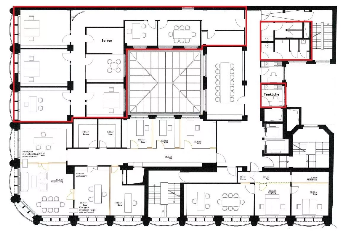
    Fläche
    754 m2
    Teilbar ab
    233 m2
    Mietpreis ab
    29,50 €/m2
    Verfügbar ab
    k.A.
    • denkmalgeschütztes 6-geschossiges Büro- und Geschäftshaus
    • Jugendstil-Bauwerk aus dem Jahr 1886
    • im Jahr 1912/13 vom Architekten Hermann Muthesius umgebaut
    • repräsentatives Eckhaus mit eindrucksvoller Fassade aus Travertin
    • umfangreiche Modernisierung im Jahr 2004
    • repräsentative Eingangslobby
    • mehrere Aufzüge
    • helle und lichtdurchflutete Büroflächen dank bodentiefer Fenster
    • Parkettfußboden
    • Hohlraumböden mit Bodentanks
    • Teilklimatisierung
    • Teeküche
    • getrennte Sanitärbereiche

    Energieausweis

    • Energieausweis liegt nicht vor

    Provision

    Die Anmietung dieser Flächen ist für den Mieter honorarpflichtig. Bei Abschluss eines rechtsgültigen Mietvertrages ist vom Mieter nachfolgend genanntes Maklerhonorar zzgl. der gesetzlich geltenden Umsatzsteuer an die Colliers International Deutschland GmbH fällig und zahlbar: bei einer Laufzeit bis 35 Monate 2,0 Monatskaltmieten bei einer Laufzeit ab 36 bis 59 Monate 2,5 Monatskaltmieten bei einer Laufzeit ab 60 bis 119 Monate 3,0 Monatskaltmieten bei einer Laufzeit ab 120 Monate 4,0 Monatskaltmieten

    Baujahr

    1886

    Ähnliche Objekte in der Nähe

    Team Office Letting

    Berlin Büro