Altona

Ihr kleinteiliges Büro im Herzen Altonas!

Büro | Zur Miete: 13,50 €/m2 | Objekt-ID: H_P1858/G1/E11

Team Bürovermietung

Hamburg Büro

040 328 701-0







    Wir verwenden Ihre Angaben zweckgebunden zur Bearbeitung Ihrer Anfrage. Weiter Informationen finden Sie in unsere Datenschutzerklärung.



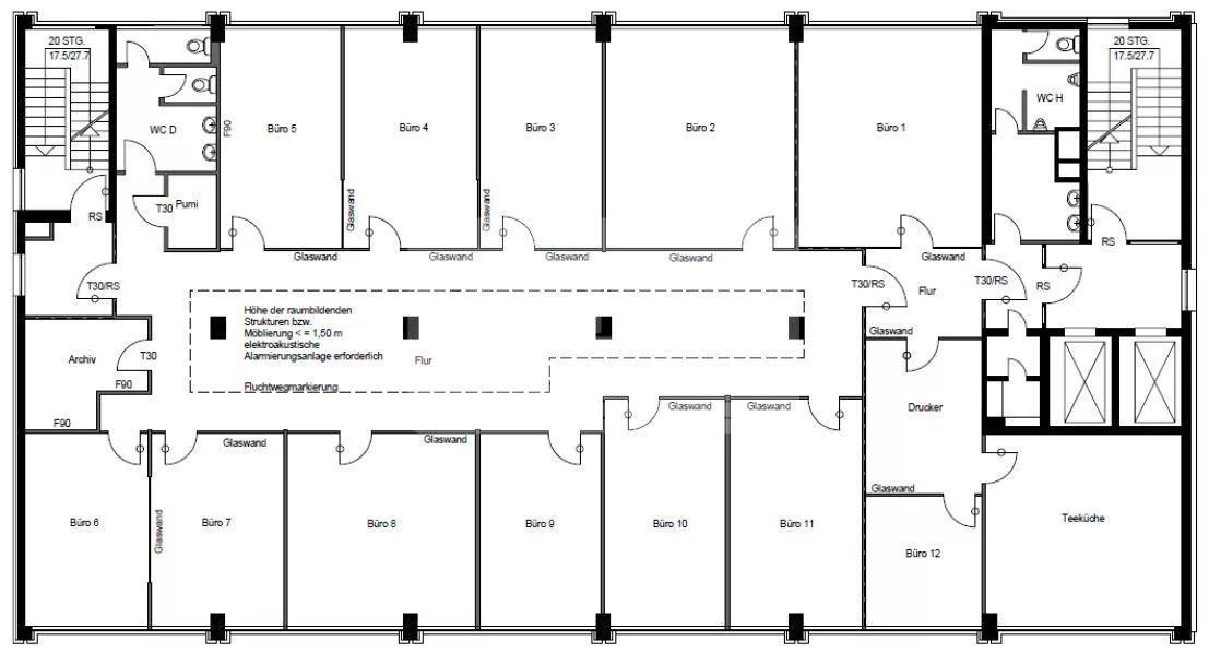
    Fläche
    513 m2
    Teilbar ab
    513 m2
    Mietpreis ab
    13,50 €/m2
    Verfügbar ab
    nach Vereinbarung
    • 16-geschossige Bestandsimmobilie
    • Deckenhöhe: ca. 3,20 m
    • Achsmaß: variiert
    • Öffenbare Fenster: vorhanden
    • Mechanische Be- und Entlüftung: vorhanden
    • Barrierefreiheit: vorhanden
    • Verkabelungsort: Fensterbankkanäle
    • Fahrradstellplätze: vorhanden
    • E-Lademöglichkeiten: nicht vorhanden
    • Glasfaseranschluss: vorhanden
    • Zertifizierung: nicht vorhanden
    • Verkabelung teilweise vorhanden
    • Teilweise Klimasplitgeräte

    Energieausweis

    • Energieausweistyp: Verbrauch
    • Gültig bis: 14.01.2025

    Provision

    Honorarfrei für den Mieter

    Baujahr

    1972

    Ähnliche Objekte in der Nähe

    Team Bürovermietung

    Hamburg Büro